

Immobilien Gesellschaft mbH der Frankfurter Volksbank Rhein/Main
Frau Janina Geis
061 ···
Nr. anzeigenPreise & Kosten
Provision für Käufer
3,57% inkl. MwSt.
Wir haben einen provisionspflichtigen Maklervertrag mit dem Verkäufer in gleicher Höhe abgeschlossen.
Lage
Die Immobilie befindet sich in attraktiver Lage von Großwallstadt am Main (PLZ 63868), einer gefragten Wohngemeinde im unterfränkischen Landkreis Miltenberg. Die Gemeinde überzeugt durch ihre ruhige, naturnahe Umgebung sowie eine sehr gute Anbindung an die umliegenden Städte.
Großwallstadt liegt direkt am Main und...
Das Haus
Kategorie
Einfamilienhaus
Baujahr
1936
Energie & Heizung
Warum sehe ich diese Anzeige? – Du siehst diese Anzeige basierend auf Ihrer Navigation auf unserer Website und den Suchkriterien, die du verwendet hast.
Energieausweistyp
Bedarfsausweis
Gebäudetyp
Wohngebäude
Baujahr laut Energieausweis
1936
Wesentliche Energieträger
OEL
Gültigkeit
bis 29.01.2036
Effizienzklasse
G
Endenergiebedarf
219,30 kWh/(m²·a)
Weitere Energiedaten
Energieträger
Öl
Heizungsart
Zentralheizung
Details
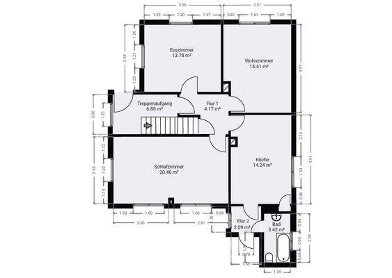
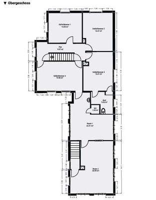
Objektbeschreibung
Dieses großzügige Ein- bis Zweifamilienhaus überzeugt mit viel Platz, flexiblen Nutzungsmöglichkeiten und einem attraktiven Grundstück. Das ursprüngliche Wohnhaus wurde im Jahr 1936 errichtet. 1949 entstand das Nebengebäude, bevor im Juli 1956 die Aufstockung beantragt und realisiert wurde. So präsentiert sich die Immobilie...
Preisinformation
1 Carportplatz
2 Stellplätze
1 Garagenstellplatz
Weitere Informationen
Sonstiges
Derzeit ist die Immobilie leerstehend.
Gerne stehen wir Ihnen für ein Beratungs- und Besichtigungstermin zur Verfügung.
Sie möchten selbst eine Immobilie verkaufen?
Wir ermitteln einen seriösen und marktgerechten Wert Ihrer Immobilie. Mit einem individuell für Sie abgestimmten Vermarktungsplan...
Anbieter der Immobilie
Immobilien Gesellschaft mbH der Frankfurter Volksbank Rhein/Main
Seligenstädter Str. 52, 63179 Obertshausen

Online-ID: 2nv3g5l
Referenznummer: 12405
Finde Angebote wie dieses
Hier geht es zu unserem Impressum, den Allgemeinen Geschäftsbedingungen, den Hinweisen zum Datenschutz und nutzungsbasierter Online-Werbung.