
J&P Immobilien
Herr Jannik Oberkalkofen
004 ···
Nr. anzeigenPreise & Kosten
Provision für Käufer
3,57% inkl. MwSt. inkl. MwSt.
Hiermit möchten wir auf die Tätigkeit des Maklers unsererseits hinweisen, welche eine Provisionszahlung von Ihnen in Höhe von 3,57% inkl. ges. MWST beinhaltet.
Lage
Mikrolage:
450 Meter bis zum nächsten Supermarkt (Lidl)
80 Meter bis zum nächsten Kindergarten
350 Meter zur Grundschule
450 Meter zur Weiterführenden Schule
Apotheken, Spielplätze und diverse Restaurants befinden sich ebenfalls in einem 500 Meter Radius.
Die Immobilie befindet sich in ruhiger...
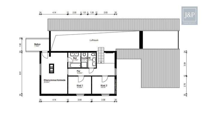
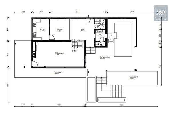
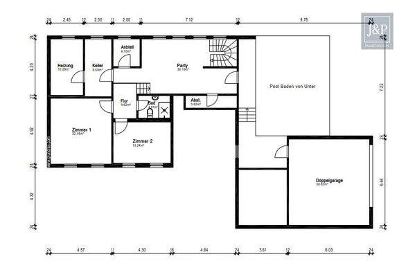
Das Haus
Kategorie
Einfamilienhaus
Baujahr
1972
Energie & Heizung
Warum sehe ich diese Anzeige? – Du siehst diese Anzeige basierend auf Ihrer Navigation auf unserer Website und den Suchkriterien, die du verwendet hast.
Energieausweistyp
Bedarfsausweis
Gebäudetyp
Wohngebäude
Baujahr laut Energieausweis
1972
Wesentliche Energieträger
OEL
Gültigkeit
bis 04.08.2035
Effizienzklasse
E
Endenergiebedarf
144,01 kWh/(m²·a)
Weitere Energiedaten
Energieträger
Öl
Heizungsart
offener Kamin, Zentralheizung
Details
Objektbeschreibung
Suchen Sie ein luxuriöses, lichtdurchflutetes Zuhause mit eigener Wohlfühloase und weitläufigem Grundstück? Legen Sie zusätzlich Wert auf architektonischen Charme und einen eigenen Pool? Dann ist dieses außergewöhnliche Objekt genau das Richtige für Sie!
Inmitten einer ruhigen, naturnahen Wohngegend von Goldbach...
Ausstattung
Alle Highlights auf einen Blick:
+ Einzigartige Split-Level Bauweise
+ Über 4 Meter hohe Decken
+ Großes Grundstück in begehrter Lage
+ Beheizter & überdachter Poolbereich
+ Terrasse mit Südausrichtung
+ Garage mit direktem Hauszugang
+ Hochwertige Alarmsicherung
+ Große Fensterfront mit...
Preisinformation
2 Garagenstellplätze, Kaufpreis je: 7.500,00 EUR
Weitere Informationen
Sonstiges
HAFTUNG: Wir weisen darauf hin, dass die von uns weitergegebenen Objektinformationen, Unterlagen, Pläne etc. ausschließlich auf Informationen basieren, die uns vom Verkäufer zur Verfügung gestellt wurden. Wir übernehmen keine Gewähr für die Vollständigkeit, Richtigkeit und Aktualität dieser Angaben. Alle...
Anbieter der Immobilie
Online-ID: 2nuzm5c
Referenznummer: 523
Finde Angebote wie dieses
Hier geht es zu unserem Impressum, den Allgemeinen Geschäftsbedingungen, den Hinweisen zum Datenschutz und nutzungsbasierter Online-Werbung.