
HB-HB-Immobilien
Herr Charles Hyde-Blake
004 ···
Nr. anzeigenPreise & Kosten
Provision für Käufer
3,57 % (inkl. 19 % MwSt.) vom beurkundeten Kaufpreis, jeweils vom Käufer und Verkäufer
Lage
Die Immobilie befindet sich in einer ruhigen Wohnstraße im Stadtteil Blockdiek. Diese Lage zeichnet sich durch eine überwiegend private Wohnbebauung aus - Mehr- und Einfamilienhäuser, Grünflächen sowie eine gute Nachbarschaft prägen diesen Stadtteil.
Die Anbindung des ÖPNV ist sehr gut: Haltestellen der Bahnlinie 1...
Das Haus
Kategorie
Reihenendhaus
Baujahr
1969
Bezug
ab sofort
Energie & Heizung
Warum sehe ich diese Anzeige? – Du siehst diese Anzeige basierend auf Ihrer Navigation auf unserer Website und den Suchkriterien, die du verwendet hast.
Energieausweistyp
Bedarfsausweis
Gebäudetyp
Wohngebäude
Baujahr laut Energieausweis
1969
Wesentliche Energieträger
KWK_FOSSIL
Gültigkeit
bis 13.01.2036
Effizienzklasse
G
Endenergiebedarf
240,00 kWh/(m²·a)
Weitere Energiedaten
Energieträger
Fernwärme
Details
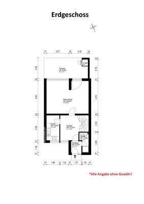
Objektbeschreibung
Das im Jahr 1969 in massiver Bauweise errichtete Einfamilienhaus präsentiert sich in einem sehr gepflegten und teilmodernisierten Zustand.
Die Wohnräume überzeugen durch eine funktionale und großzügige Raumaufteilung: Drei gemütliche Schlafzimmer, ein großzügiges Wohnzimmer, eine gesellige Essdiele sowie eine Küche...
Ausstattung
Exemplarisch möchten wir auf folgende Ausstattungsmerkmale hinweisen:
-3 Schlafzimmer (ca. 14,12,9 m²)
-Großes Wohnzimmer (ca. 28 m²)
-Essdiele (ca. 10 m²)
-Zweifach-Überdachte Südterrasse (ca. 30 m²) mit Markise
- ca. 4 m² Loggia im OG
-Küche mit EBK
-Modernisiertes Tageslicht Duschbad (ca. 7...
Preisinformation
1 Garagenstellplatz
Weitere Informationen
Sonstiges
Die Grundsteuer beträgt ca 415,00 € p. a.
Unsere Objektangaben basieren auf den uns erteilten Informationen. Eine Haftung für die Richtigkeit und Vollständigkeit können wir deshalb nicht übernehmen.
Stichworte
Nutzfläche: 47,00 m², Anzahl der Schlafzimmer: 3, Anzahl der Badezimmer: 1, Anzahl der...
Anbieter der Immobilie
HB-HB-Immobilien
Schwachhauser Heerstr. 54A, 28209 Bremen
Online-ID: 2nuwh5v
Referenznummer: CHB-26-03-0000441
Finde Angebote wie dieses
Hier geht es zu unserem Impressum, den Allgemeinen Geschäftsbedingungen, den Hinweisen zum Datenschutz und nutzungsbasierter Online-Werbung.