

Immobiliengesellschaft der Westerwald Bank mbH
Frau Bettina Dietershagen
+49 ···
Nr. anzeigenPreise & Kosten
Provision für Käufer
3,57 % inkl. MwSt.
Lage
Die Stadt Wissen, welche zugleich Sitz der Verbandsgemeindeverwaltung ist, verfügt über eine gute Infrastruktur. Geschäfte des täglichen Bedarfs, Banken, Behörden, Schulen jeglicher Art, Kindergärten sind vor Ort zu finden und tlw. in wenigen Gehminuten zu erreichen.
Zu erwähnen ist auch, dass der Regiobahnhof mit...
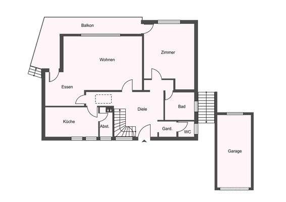
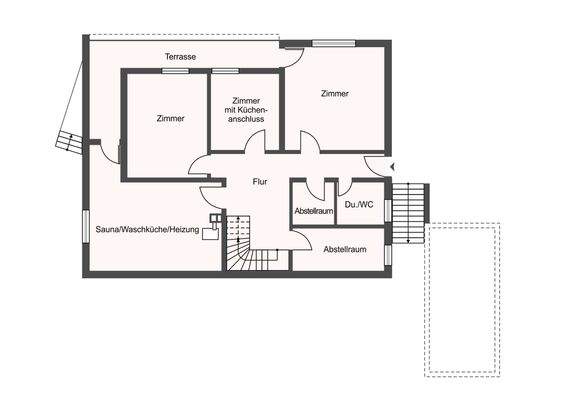
Das Haus
Kategorie
Einfamilienhaus
Baujahr
1976
Energie & Heizung
Warum sehe ich diese Anzeige? – Du siehst diese Anzeige basierend auf Ihrer Navigation auf unserer Website und den Suchkriterien, die du verwendet hast.
Energieausweistyp
Verbrauchsausweis
Gebäudetyp
Wohngebäude
Baujahr laut Energieausweis
1976
Wesentliche Energieträger
Gas
Gültigkeit
14.10.2024 bis 13.10.2034
Effizienzklasse
F
Endenergieverbrauch
188,10 kWh/(m²·a) - Warmwasser enthalten
Weitere Energiedaten
Haustyp
Massivhaus
Energieträger
Gas
Details
Objektbeschreibung
Ein sehr geräumiges Einfamilienhaus in toller und beliebter Wohnlage der Stadt Wissen.
Das in seinem Ursprung um 1976/77 erstellte Wohnhaus mit tollem Aussichtsbalkon und Terrasse wurde durch einen seinerzeit bekannten Architekten geplant und in Massivbauweise erstellt. Die Immobilie wurde für eine große Familie...
Ausstattung
Massivbauweise aus 1976/77, Außenfassade verputzt und im Jahre 1997 neu gestrichen, massive Geschossdecken, massive Innenwände, Walmdach (oberste Geschoßdecke gedämmt nach den seinerzeitigen baurechtlichen Vorschriften) mit Pfanneneindeckung und Kupferdachrinnen, Gaszentralheizung mit zentraler Warmwasserversorgung aus 2000...
Weitere Informationen
Stichworte
Bundesland: Rheinland-Pfalz
Anbieter der Immobilie

Online-ID: 2nuvh5j
Referenznummer: 2 995 3
Finde Angebote wie dieses
Hier geht es zu unserem Impressum, den Allgemeinen Geschäftsbedingungen, den Hinweisen zum Datenschutz und nutzungsbasierter Online-Werbung.