CUBION Immobilien AG

Herr Tiziano Sanna

Zentrale Praxis- und Schulungsfläche in Duisburg!

auf Anfrage
Nettomiete
479 m²
Bürofläche ca.
ab 113 m²
Teilbare Fläche ca.
k.A.
Zimmer

Der Anbieter dieses Objekts hat gegenüber der AVIV Germany GmbH als Betreiber dieses Online-Marktplatzes erklärt, nicht als Unternehmer im Sinne des § 1 KSchG zu handeln. Die im Verbraucherschutzrecht der Union verankerten Verbraucherrechte (insbesondere Informationspflichten und Rücktritts- bzw. Widerrufsrechte) finden auf den Vertrag zwischen dem Anbieter des Objekts und Ihnen (dem Interessenten) keine Anwendung.

Provisionsfrei
Gewerblicher Anbieter

Der Anbieter dieses Objekts hat gegenüber der AVIV Germany GmbH als Betreiber dieses Online-Marktplatzes erklärt, als Unternehmer im Sinne des § 1 KSchG zu handeln.

AdresseStraße nicht freigegeben
47051 Duisburg 
(Altstadt)
Auf Karte ansehen

Preise & Kosten

Nettomiete auf Anfrage Nebenkosten € 4,50 Heizkosten nicht in Warmmiete enthalten

Provision für Mieter

provisionsfrei

Lage

Die Immobilie befindet sich in zentraler Innenstadtlage von Duisburg - direkt gegenüber dem Rathaus und nur wenige Schritte von der belebten Münzstraße sowie der Königsgalerie entfernt. Eine hervorragende Erreichbarkeit ist durch die unmittelbare Nähe zur U-Bahn-Station "Duisburg-Rathaus" gewährleistet, die sich direkt vor...

Mehr anzeigen

Büro-/Praxisfläche

Baujahr

1960

Bezug

nach Vereinbarung

  • Böden: Kunststoffboden, Teppichboden
  • Sonnenschutz
  • Personenaufzug

Energie & Heizung

Weitere Energiedaten

Energieträger

Fernwärme

Heizungsart

Zentralheizung

Details

Objektbeschreibung

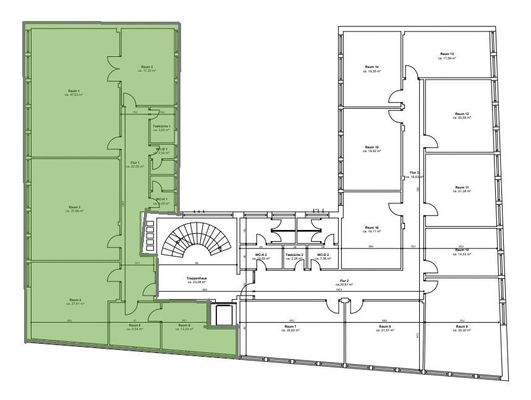
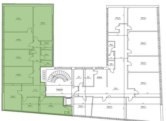
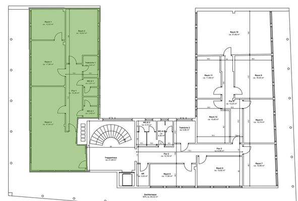
In zentraler Lage von Duisburg präsentiert sich diese gepflegte Büroimmobilie als attraktiver Standort für Unternehmen, die Wert auf eine repräsentative Adresse und eine funktionale Arbeitsumgebung legen. Zur Verfügung stehen drei Büroeinheiten; im 2. Obergeschoss mit ca. 185 m², im 3. Obergeschoss mit ca. 181 m² sowie im...

Mehr anzeigen

Ausstattung

Bodenbelag: Teppichboden, Vinyl in Holzoptik
EDV-Verkabelung: vom Vormieter
Kabelführung: Bodentanks, Kabelkanäle
Kühlung: optional möglich
Sonnenschutz: Raffstoren außen (elektrisch)
Küche: vorhanden
Beleuchtung: Rasterdecken-Einbauleuchten
Aufzug: Personenaufzug
Heizung: Fernwärme
Barrierearm...

Mehr anzeigen

Weitere Informationen

Sonstiges
GEG 2020: Ein Energieausweis liegt zurzeit nicht vor.

Dieses Angebot ist provisionsfrei für den Mieter!

Alle Informationen in diesem Exposé beruhen auf Angaben, die wir vom Vermieter erhalten haben. Für Richtigkeit und Vollständigkeit übernehmen wir keine Gewähr. Zwischenvermietung vorbehalten...

Mehr anzeigen

Anbieter der Immobilie

Partner

CUBION Immobilien AG

Akazienallee 65, 45478 Mülheim

user

Herr Tiziano Sanna

Dein Ansprechpartner

Anbieter-Website Anbieter-Impressum

Online-ID: 2nutr5r

Referenznummer: 1038

Finde Angebote wie dieses

imageimageimage

Hier geht es zu unserem Impressum, den Allgemeinen Geschäftsbedingungen, den Hinweisen zum Datenschutz und nutzungsbasierter Online-Werbung.