

Lütt Immobilien GmbH
Herr Ron Lütt
004 ···
Nr. anzeigenPreise & Kosten
Provision für Käufer
provisionsfrei
Lage
Das Einfamilienhaus mit Einliegerwohnung befindet sich in ruhiger und familienfreundlicher Lage, in der Gemeinde Bönebüttel, östlich von Neumünster. Die Umgebung ist geprägt von weitläufigen Feldern, Wiesen und kleinen Waldgebieten und bietet einen hohen Erholungswert - ideal für Familien, Naturliebhaber und Menschen, die...
Das Haus
Kategorie
Einfamilienhaus
Baujahr
1918
Bezug
Nach Vereinbarung
Energie & Heizung
Warum sehe ich diese Anzeige? – Du siehst diese Anzeige basierend auf Ihrer Navigation auf unserer Website und den Suchkriterien, die du verwendet hast.
Energieausweistyp
Bedarfsausweis
Gebäudetyp
Wohngebäude
Baujahr laut Energieausweis
1993
Wesentliche Energieträger
OEL
Gültigkeit
bis 16.10.2035
Effizienzklasse
F
Endenergiebedarf
199,00 kWh/(m²·a)
Weitere Energiedaten
Energieträger
Öl
Heizungsart
Fußbodenheizung, offener Kamin, Zentralheizung
Details
Objektbeschreibung
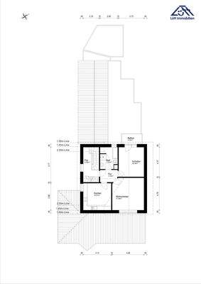
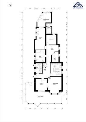
Wer das Gefühl von Bullerbü liebt - weite Wiesen, Kinderlachen, Apfelduft im Sommer - wird sich in diesem besonderen Anwesen sofort zuhause fühlen. In ruhiger Lage von Bönebüttel, auf einem rund 1.622 m² großen Grundstück, befindet sich dieses großzügige Einfamilienhaus mit Einliegerwohnung. Insgesamt ca. 301 m² Wohnfläche...
Ausstattung
- ca. 1622 m² Grundstück
- ca. 301 m² Wohnfläche
- ca. 22 m² Kellerfläche
- ca. 112,5m² Nutzfläche
- Wintergarten mit ca. 55 m²
- Einliegerwohnung mit ca. 65 m²
- Swimmingpool
- Carport
- Werkstatt
- Erdkeller
Preisinformation
1 Carportplatz
Weitere Informationen
Sonstiges
Bitte teilen Sie uns bei jeder Onlineanfrage Ihre vollständigen Kontaktdaten inklusive Anschrift, Emailadresse und Telefonnummer mit, damit Ihre Anfrage zeitnah bearbeitet werden kann.
Die Maklercourtage unserer angebotenen Objekte beträgt grundsätzlich 7,14% des beurkundeten Kaufpreises bei Immobilien und...
Anbieter der Immobilie
Lütt Immobilien GmbH
Auguste-Viktoria-Str 14, 24103 Kiel

Online-ID: 2nuse5v
Referenznummer: 385520
Finde Angebote wie dieses
Hier geht es zu unserem Impressum, den Allgemeinen Geschäftsbedingungen, den Hinweisen zum Datenschutz und nutzungsbasierter Online-Werbung.