

TWE-Immobilien Thomas Erthle e. K.
Herr Yasin Gözgec
+49 ···
Nr. anzeigenPreise & Kosten
Provision für Käufer
2,38 % inkl. MwSt.
Lage
Das Haus liegt in einem gewachsenen Wohngebiet im beliebten Kölner Stadtteil Junkersdorf. Die Umgebung ist geprägt von gepflegter Wohnbebauung, viel Grün und einer angenehmen Nachbarschaft - eine Lage, die sowohl Familien als auch Berufstätigen ein komfortables Wohnumfeld bietet.
Die Infrastruktur ist hervorragend...
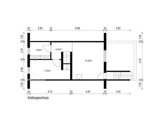
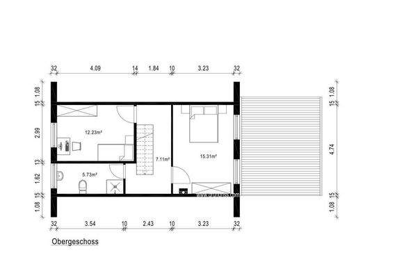
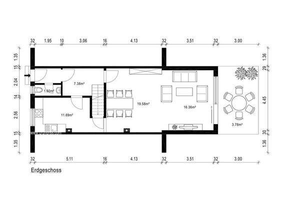
Das Haus
Kategorie
Reihenmittelhaus
Baujahr
1956
Bezug
31.12.2026
Energie & Heizung
Warum sehe ich diese Anzeige? – Du siehst diese Anzeige basierend auf Ihrer Navigation auf unserer Website und den Suchkriterien, die du verwendet hast.
Energieausweistyp
Verbrauchsausweis
Gebäudetyp
Wohngebäude
Baujahr laut Energieausweis
1956
Wesentliche Energieträger
Gas
Gültigkeit
17.02.2026 bis 16.02.2036
Effizienzklasse
B
Endenergieverbrauch
71,49 kWh/(m²·a)
Weitere Energiedaten
Haustyp
Massivhaus
Energieträger
Gas
Heizungsart
Zentralheizung
Details
Objektbeschreibung
Ein Zuhause zum Ankommen - kernsaniertes Reihenmittelhaus mit sonnigem Garten
Dieses liebevoll kernsanierte Reihenmittelhaus vereint modernen Wohnkomfort mit einer warmen, familiären Atmosphäre. Im Zuge der umfassenden Sanierung im Jahr 2008 wurde auch das Wohnzimmer erweitert und bildet heute das Herzstück des Hauses...
Ausstattung
- Umfassende Kernsanierung des Hauses im Jahr 2008
- Großzügiges Wohnzimmer mit erweitertem Grundriss und integriertem Essbereich
- Vier Schlafzimmer mit vielseitigen Nutzungsmöglichkeiten
- Sonniger Garten mit Terrasse in Westausrichtung
- Einbauküche mit funktionaler Ausstattung
- Parkettboden im Großteil des...
Weitere Informationen
Sonstiges
Wir sind der allein beauftragte Makler und freuen uns auf Sie und Ihre Anfrage.
Um eine schnelle Bearbeitung zu gewährleisten, übermitteln Sie uns bitte Ihre vollständigen Kontaktdaten mit Telefon-Nr. und E-Mail-Adresse.
Gerne vereinbaren wir einen Besichtigungstermin mit Ihnen und freuen uns über...
Anbieter der Immobilie

Online-ID: 2nus45k
Referenznummer: 3735 (1/3735)
Finde Angebote wie dieses
Hier geht es zu unserem Impressum, den Allgemeinen Geschäftsbedingungen, den Hinweisen zum Datenschutz und nutzungsbasierter Online-Werbung.