
Marko Künne Immobilien
034 ···
Nr. anzeigenPreise & Kosten
Provision für Käufer
provisionsfrei
Abschreibung/Anlage
Denkmalschutz-Afa
Lage
Folgt man dem Elsterbecken, das sich durch ganz Leipzig zieht, in Richtung Norden und biegt in Höhe des Zentrums Nordwest nach rechts ab, gelangt man mit der Weißen Elster nach Möckern. Die Tramlinien 10 und 11 verbinden das Stadtviertel mit den im Süden gelegenen Ortschaften und passieren die Innenstadt. Bus Nr. 90 fährt von...
Die Wohnung
Wohnungslage
1. Geschoss
Derzeitige Nutzung
vermietet
Wohnanlage
Energie & Heizung
Warum sehe ich diese Anzeige? – Du siehst diese Anzeige basierend auf Ihrer Navigation auf unserer Website und den Suchkriterien, die du verwendet hast.
Energieausweis: für diesen Gebäudetyp nicht notwendig
Weitere Energiedaten
Energieträger
Gas
Heizungsart
Zentralheizung
Details
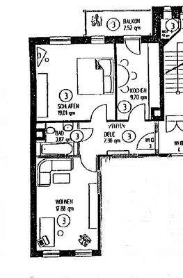
Objektbeschreibung
Zum Verkauf steht eine attraktive 2-Zimmer-Eigentumswohnung im beliebten Leipziger Stadtteil Möckern. Die Wohnung befindet sich im ersten Obergeschoss eines repräsentativen Jugendstilgebäudes, das im Jahr 2005 umfassend kernsaniert wurde.
Die ca. 61 m² große Wohnung überzeugt durch einen durchdachten Grundriss: Das...
Preisinformation
Nettorendite Ist in %: 3,6
Nettorendite Soll in %: 3,6
Soll-Mieteinnahmen pro Jahr: 5.940,00 EUR
Ist-Mieteinnahmen pro Jahr: 5.940,00 EUR
Weitere Informationen
Stichworte
Anzahl der Schlafzimmer: 1, Anzahl der Badezimmer: 1, Anzahl Balkone: 1, Bundesland: Sachsen, 4 Etagen, Wohnungsnr.: 3, modernisiert: 2005
Anbieter der Immobilie
Online-ID: 2nur65g
Referenznummer: 586555
Finde Angebote wie dieses
Hier geht es zu unserem Impressum, den Allgemeinen Geschäftsbedingungen, den Hinweisen zum Datenschutz und nutzungsbasierter Online-Werbung.