
Mietwohnzentrale Dresden GmbH
03 ···
Nr. anzeigenPreise & Kosten
Provision für Käufer
3,57 %
Abschreibung/Anlage
Denkmalschutz-Afa
Lage
- nordöstlich von Dresden
- ca. 10 Kilometer bis ins Stadtzentrum
Das Gebäude befindet sich am Rande der Landeshauptstadt Dresden oberhalb des Stadtteiles Pillnitz inmitten eines reizvollen Naturschutzgebietes. In der Nähe befindet sich das weltberühmte Schloss Pillnitz mit seinen Parkanlagen, die Borsberghänge...
Das Haus
Kategorie
Mehrfamilienhaus
Baujahr
1870
Bezug
ab sofort oder nach Vereinbarung
Details
Objektbeschreibung
- Denkmalgeschützter Teil eines Bauernhofes
- im 19. Jahrhundert wurde dieser Teil als "Wohnstallhaus" genutzt
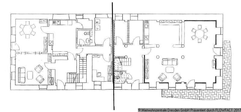
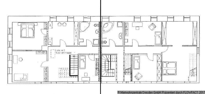
- die Wohn- Nutzfläche incl. auszubauenden Dachboden beträgt ca. 600m², ohne Dachboden ca. 406 m²
- Wegerechte / Grunddienstbarkeit (Geh- und Fahrtrecht) sind notariell gesichert
- alle öffentlichen...
Ausstattung
- das Objekt ist momentan in einem unsanierten bzw. im Fassaden- und Dachbereich teilsanierten Zustand
- die Fenster wurden bereits komplett ersetzt
- eine Bauplanung lag vor über 10 Jahren für 2 Doppelhaushälften (siehe beiliegenden Grundriss) vor
- beide DHH können seitlich mit Terrasse versehen werden
- es...
Weitere Informationen
Sonstiges
- Das Kaufobjekt ist für den Käufer mit 3,57 % vom notariel beurkundeten Gesamtkaufpreis provisionspflichtig.
- Hohe steuerliche Abschreibungsmöglichkeiten laut § 7i des EStg auf den Anteil der Sanierungskosten für Anleger möglich.
- weitere Angebote finden Sie unter...
Anbieter der Immobilie
Online-ID: 2nup95k
Referenznummer: 20290
Finde Angebote wie dieses
Hier geht es zu unserem Impressum, den Allgemeinen Geschäftsbedingungen, den Hinweisen zum Datenschutz und nutzungsbasierter Online-Werbung.