
Evernest GmbH
Luba Schneider
+49 ···
Nr. anzeigenPreise & Kosten
Provision für Käufer
3.57 inkl. MwSt.
Bei Abschluss eines notariellen Kaufvertrages ist eine Käuferprovision vom Käufer in Höhe von 3.57 % inkl. MwSt. aus dem Kaufpreis fällig.
Lage
Das Haus befindet sich in Bensberg-Lückerath, einer gefragten Wohnlage von Bergisch Gladbach-Bensberg. Bensberg zählt zu den bevorzugten Wohnlagen im Kölner Umland und ist geprägt von gepflegten Wohnhäusern, ruhigen Anliegerstraßen und einer gewachsenen Nachbarschaft.
Das Zentrum von Bensberg mit Einkaufsmöglichkeiten...
Das Haus
Kategorie
Einfamilienhaus
Baujahr
1958
Energie & Heizung
Warum sehe ich diese Anzeige? – Du siehst diese Anzeige basierend auf Ihrer Navigation auf unserer Website und den Suchkriterien, die du verwendet hast.
Energieausweistyp
Bedarfsausweis
Gebäudetyp
Wohngebäude
Effizienzklasse
E
Endenergiebedarf
142,05 kWh/(m²·a)
Weitere Energiedaten
Energieträger
Gas
Details
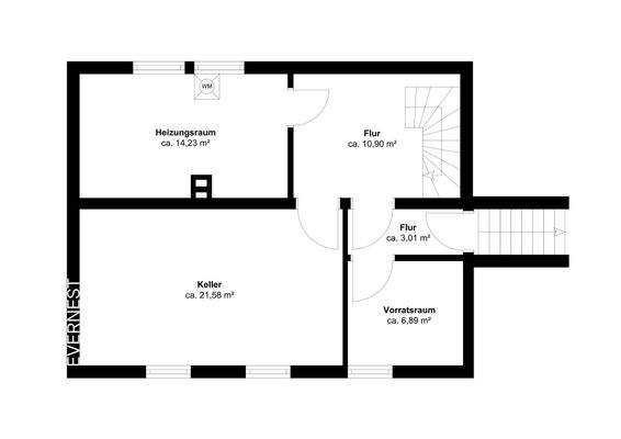
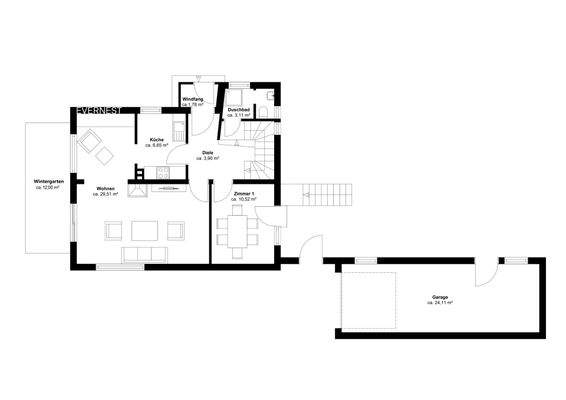
Objektbeschreibung
In einer ruhigen und beliebten Anliegerstraße von Bensberg-Lückerath befindet sich dieses gepflegte, freistehende Einfamilienhaus aus dem Jahr 1958. Das ca. 406 m² große Grundstück bietet eine gelungene Kombination aus gewachsener Nachbarschaft und Privatsphäre im Garten.
Mit einer Wohnfläche von ca. 121 m², verteilt...
Ausstattung
Zusammenfassung der Eckdaten:
- Baujahr: 1958
- Grundstück: ca. 406 m²
- Wohnfläche: ca. 113 m²
- Zimmer: 5 Zimmer
- beheizter Wintergarten
- Kaminofen
- Westbalkon
- Garage
- unterkellert
Investitionen:
- Wintergarten 2004
- Jalousien 2004
- Kachelofen 2007
-...
Weitere Informationen
Stichworte
Parkhaus vorhanden, Anzahl der Schlafzimmer: 4, Anzahl der Badezimmer: 2, Anzahl Balkone: 1, Anzahl Terrassen: 1, 2 Etagen
Anbieter der Immobilie
Online-ID: 2nunn5k
Referenznummer: L-FB7MJOE
Finde Angebote wie dieses
Hier geht es zu unserem Impressum, den Allgemeinen Geschäftsbedingungen, den Hinweisen zum Datenschutz und nutzungsbasierter Online-Werbung.