

MAREWO Immobilien
Herr Marcus Reimann
034 ···
Nr. anzeigenPreise & Kosten
Provision für Käufer
Die Maklercourtage i.H.v. 3,57 % inkl. MwSt. vom Kaufpreis ist bei Kaufvertragsabschluss (Beurkundungstermin) verdient und fällig.
Lage
Der Leipziger Ortsteil Althen-Kleinpösna befindet sich im östlichen Stadtgebiet und ist durch seine ruhige und grüne Wohnlage gekennzeichnet.
Trotz der naturnahen Lage ist die Leipziger Innenstadt gut erreichbar. Über die nahegelegenen Bundesstraßen sowie den Anschluss an den öffentlichen Personennahverkehr gelangen...
Die Wohnung
Wohnungslage
1. Geschoss
Wohnanlage
Energie & Heizung
Warum sehe ich diese Anzeige? – Du siehst diese Anzeige basierend auf Ihrer Navigation auf unserer Website und den Suchkriterien, die du verwendet hast.
Energieausweistyp
Verbrauchsausweis
Gebäudetyp
Wohngebäude
Baujahr laut Energieausweis
1995
Wesentliche Energieträger
Erdgas
Gültigkeit
08.04.2024 bis 07.04.2034
Effizienzklasse
C
Endenergieverbrauch
88,00 kWh/(m²·a)
Weitere Energiedaten
Energieträger
Gas
Heizungsart
Zentralheizung
Details
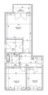
Objektbeschreibung
Die Eigentumswohnung befindet sich in einem Mehrfamilienhaus, welches 1995 gebaut wurde, in Leipzig Ortsteil Althen-Kleinpösna.
Die gut geschnittene und helle Etagenwohnung (1.Obergeschoss) verfügt über ein Tageslichtbad mit Wanne, ein Schlafzimmer mit ca. 15m², ein Kinderzimmer mit ca. 11m² sowie ein geräumiges Wohnzimmer...
Ausstattung
Eigentumswohnung mit Balkon
3 Zimmer mit ca. 77m² Wohnfläche
1. Obergeschoss
Baujahr 1995
Energieeffizienzklasse C (energetisch gut)
Tageslichtbad mit Badewanne
eigenes Kellerabteil
ein Außenstellplatz - bereits im Kaufpreis enthalten
90 von 10.000...
Weitere Informationen
Sonstiges
Maklerprovision
Mit der Kontaktaufnahme mit uns als Immobilienmakler, der MAREWO Immobilien, wird ein Maklervertrag für diese Immobilie geschlossen. Insofern durch unsere Tätigkeit ein wirksamer Kaufvertrag zustande kommt, ist die in diesem Exposé angegebene Maklerprovision der Höhe nach zu zahlen. Die...
Dokumente
Anbieter der Immobilie

Online-ID: 2numk5k
Referenznummer: Saxoniastr. 12
Finde Angebote wie dieses
Hier geht es zu unserem Impressum, den Allgemeinen Geschäftsbedingungen, den Hinweisen zum Datenschutz und nutzungsbasierter Online-Werbung.