
Immotreff
Herr Karlheinz Radschinsky
004 ···
Nr. anzeigenPreise & Kosten
Kaution
770,00
Warum sehe ich diese Anzeige? – Du siehst diese Anzeige basierend auf Ihrer Navigation auf unserer Website und den Suchkriterien, die du verwendet hast.
Lage
Attraktive Lage mit hohem Wohn- und Freizeitwert
Die Wohnung befindet sich in unmittelbarer Nähe zum Stadtzentrum und zugleich in einer grünen, gepflegten Wohnumgebung. Direkt angrenzend liegt der beliebte Küchwald - eines der schönsten Freizeit- und Erholungsgebiete der Stadt Chemnitz.
Im Stadtteil...
Die Wohnung
Wohnungslage
3. Geschoss
Bezug
sofort
Wohnanlage
Energie & Heizung
Warum sehe ich diese Anzeige? – Du siehst diese Anzeige basierend auf Ihrer Navigation auf unserer Website und den Suchkriterien, die du verwendet hast.
Energieausweis: für diesen Gebäudetyp nicht notwendig
Weitere Energiedaten
Energieträger
Gas
Heizungsart
Zentralheizung
Details
Objektbeschreibung
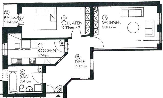
Diese attraktive 2-Zimmer-Wohnung befindet sich im 2. Obergeschoss eines stilvollen, denkmalgeschützten Altbaus aus dem Jahr 1910.
Ein besonderes Highlight ist das großzügige Wohnzimmer, das zur ruhigen Seitenstraße ausgerichtet ist und viel Platz zum Entspannen bietet.
Über den zentralen Flur sind alle Räume...
Ausstattung
- helles Wohnzimmer
- geräumiges Schlafzimmer mit Zugang zum Balkon
- großzügige Essküche
- Tageslichtbad mit Wanne
- Fußböden sind mit Laminat ausgestattet
- abschließbares Kellerabteil
Preisinformation
Nebenkosten pro qm: 3,00 EUR
Weitere Informationen
Sonstiges
Um eine schnelle und unkomplizierte Terminvereinbarung zu treffen, können Sie uns gern unter folgenden Rufnummern von 8:00 Uhr bis 18:00 erreichen.
Tel.: 0371 / 31 31 51
Funk: 0172 / 79 88 500
Sie können natürlich auch auf unserer Homepage sich über andere Angebote...
Anbieter der Immobilie

Immotreff
Walter-Oertel-Straße 24, 09112 Chemnitz
Online-ID: 2numb5m
Referenznummer: IC149125
Finde Angebote wie dieses
Hier geht es zu unserem Impressum, den Allgemeinen Geschäftsbedingungen, den Hinweisen zum Datenschutz und nutzungsbasierter Online-Werbung.