
Aigner Immobilien GmbH
Frau Natalie Off
+49 ···
Nr. anzeigenPreise & Kosten
Provision für Käufer
3,57% inkl. MwSt.
Die Käuferprovision beträgt 3,57% inkl. gesetzlicher Mehrwertsteuer vom wirtschaftlichen Kaufpreis. Unsere Angebote erfolgen freibleibend und unverbindlich. Irrtum und Zwischenverkauf bleiben vorbehalten.
Lage
Pähl vereint den Charme des ländlichen Lebens im malerischen Fünfseenland und im traditionsreichen Pfaffenwinkel mit der Nähe zur Stadt sowie zu den Bergen.
Im Ort finden Sie Kindergärten, eine Grundschule, Nachmittagsbetreuung sowie verschiedene Restaurants und Bäckereien. Ein breites sportliches Angebot - vom...
Das Haus
Kategorie
Einfamilienhaus
Baujahr
2025
Bezug
nach Vereinbarung / Frühjahr 2026
Energie & Heizung
Warum sehe ich diese Anzeige? – Du siehst diese Anzeige basierend auf Ihrer Navigation auf unserer Website und den Suchkriterien, die du verwendet hast.
Energieausweistyp
Bedarfsausweis
Gebäudetyp
Wohngebäude
Baujahr laut Energieausweis
2025
Gültigkeit
bis 04.12.2035
Endenergiebedarf
8,50 kWh/(m²·a)
Weitere Energiedaten
Energieträger
Elektro
Heizungsart
Zentralheizung
Details
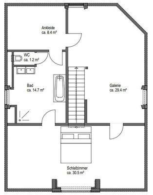
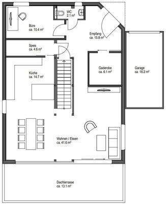
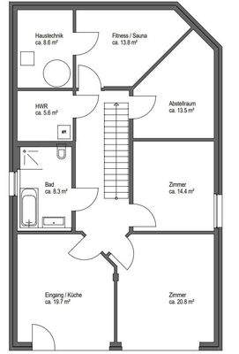
Objektbeschreibung
Im wunderschönen Pähl präsentiert sich dieses neu errichtete Einfamilienhaus als modernes Zuhause mit außergewöhnlichem Wohnkomfort. Auf fast 300 m² Wohnfläche, verteilt über drei Etagen, vereint das Objekt großzügiges Wohnen mit einer durchdachten Architektur, die vielfältige Nutzungsmöglichkeiten eröffnet und beste...
Ausstattung
- großzügige Terrassen mit Süd-West-Ausrichtung und Bergblick
- Süd-West-Garten
- Parkettböden
- Einbauküche
- Fußbodenheizung
- zwei Tageslichtbadezimmer
- Gäste-Toilette im EG
- Holz-Alu-Fenster mit integrierter, elektrischer Jalousie
- KfW 40
- Wärmepumpe
- Photovoltaikanlage 6kWp...
Preisinformation
1 Garagenstellplatz
Weitere Informationen
Sonstiges
Energiekennwert: 8,5 kWh/(m²*a)
Befeuerung/Energieträger: Strom
Energieausweistyp: Bedarfsausweis
Baujahr: 2025
Heizungsart: Wärmepumpe
Energieeffizienzklasse: A+
Mehr Bilder und Infos hier - https://aigner-immobilien.de/objekt/ID-43145/
Kostenlose Online-Bewertung -...
Anbieter der Immobilie
Aigner Immobilien GmbH
Ruffinistraße 26, 80637 München
Online-ID: 2nul956
Referenznummer: 43145
Finde Angebote wie dieses
Hier geht es zu unserem Impressum, den Allgemeinen Geschäftsbedingungen, den Hinweisen zum Datenschutz und nutzungsbasierter Online-Werbung.