

FALC Immobilien Herzogtum Lauenburg Nord
Herr Mathias Flägel
080 ···
Nr. anzeigenPreise & Kosten
Provision für Käufer
3,57 % inkl. MwSt vom not. Kaufpreis
Lage
Die Stadt Brüel liegt im westlichen Mecklenburg-Vorpommern und gehört zum Landkreis Ludwigslust-Parchim. Sie ist von einer abwechslungsreichen Naturlandschaft umgeben, die durch zahlreiche Seen, Wälder und weitläufige Grünflächen geprägt ist. Diese Umgebung verleiht dem Standort einen hohen Erholungswert und macht ihn...
Das Haus
Kategorie
Reihenmittelhaus
Baujahr
1900
Bezug
nach Absprache
Energie & Heizung
Warum sehe ich diese Anzeige? – Du siehst diese Anzeige basierend auf Ihrer Navigation auf unserer Website und den Suchkriterien, die du verwendet hast.
Energieausweistyp
Verbrauchsausweis
Gebäudetyp
Wohngebäude
Wesentliche Energieträger
Gas
Gültigkeit
23.09.2025 bis 22.09.2035
Effizienzklasse
F
Endenergieverbrauch
170,00 kWh/(m²·a)
Weitere Energiedaten
Energieträger
Gas
Details
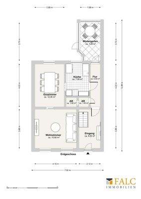
Objektbeschreibung
Das Reihenmittelhaus aus dem Jahr 1900 befindet sich auf einem ca. 512 m² großen Grundstück und bietet mit einer Wohnfläche von ca.92 m² ein solides Raumangebot, das sich auf zwei Wohnebenen verteilt. Die Immobilie überzeugt durch ihren klassischen Grundriss und den besonderen Charme eines älteren Wohnhauses.
Im...
Ausstattung
- Baujahr ca. 1900
- Wohnfläche ca. 92 m², verteilt auf zwei Etagen
- Grundstücksfläche ca. 512 m²
Erdgeschoss:
- Küche
- separates Esszimmer
- Wohnzimmer
- kleiner Abstellraum
Obergeschoss:
- Badezimmer mit Dusche
- zwei...
Weitere Informationen
Sonstiges
Eine Besichtigung sagt mehr als jede Beschreibung. Bei Interesse zögern Sie nicht und vereinbaren Sie einen unverbindlichen Termin. Wir bieten nicht nur eine kostenlose Hotline, sondern auch einen Service am Wochenende an.
Bei Interesse geben Sie bitte immer Ihre vollständigen Kontaktdaten an.
Die...
Anbieter der Immobilie
FALC Immobilien Herzogtum Lauenburg Nord
Fritz-Reuter-Straße 15, 19205 Gadebusch

Online-ID: 2nul65g
Referenznummer: FALC-MF-80530
Finde Angebote wie dieses
Hier geht es zu unserem Impressum, den Allgemeinen Geschäftsbedingungen, den Hinweisen zum Datenschutz und nutzungsbasierter Online-Werbung.