
VON POLL IMMOBILIEN Hamburg-Alstertal - Sandra Husemann
VON POLL IMMOBILIEN Shop Hamburg-Alstertal
004 ···
Nr. anzeigenPreise & Kosten
Provision für Käufer
Käuferprovision beträgt 3,57 % (inkl. MwSt.) des beurkundeten Kaufpreises
Lage
Barsbüttel gehört zur Metropolregion Hamburg und ist bei Berufspendlern nach Hamburg besonders beliebt. Hier wohnt man in idyllischer Landschaft vor den Toren Hamburgs und ist trotzdem in ca. 20 Minuten in der Hamburger Innenstadt und in 45 Minuten am Ostseestrand. Die Autobahnen A1 und A24 sind in wenigen Fahrminuten zu...
Das Haus
Kategorie
Einfamilienhaus
Baujahr
1972
Energie & Heizung
Warum sehe ich diese Anzeige? – Du siehst diese Anzeige basierend auf Ihrer Navigation auf unserer Website und den Suchkriterien, die du verwendet hast.
Energieausweistyp
Bedarfsausweis
Gebäudetyp
Wohngebäude
Baujahr laut Energieausweis
2019
Wesentliche Energieträger
GAS
Gültigkeit
bis 09.10.2033
Effizienzklasse
D
Endenergiebedarf
105,10 kWh/(m²·a)
Weitere Energiedaten
Energieträger
Gas
Heizungsart
Fußbodenheizung, offener Kamin, Zentralheizung
Details
Objektbeschreibung
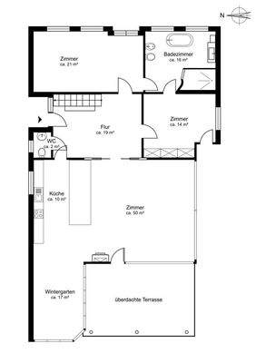
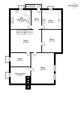
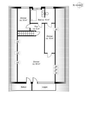
Dieses ansprechende Zweifamilienhaus wurde im Jahre 1972 auf einem ca. 621 m² großen Grundstück als Fertighaus mit Betonfertigteilen errichtet. Auf ca. 241 m² Wohnfläche und ca. 120 m² Nutzfläche, die sich über 3 Ebenen verteilen, bietet Ihnen die Immobilie viel Platz für unterschiedliche Nutzungsmöglichkeiten.
Egal...
Ausstattung
* Modernisierung Obergeschoss in 2024
* Dacheindeckung in 2019
* neue Heizung aus 2019
* Teilerneuerung der Fenster in 2019
* elektrische Rollläden
* hochwertige und moderne Küche aus dem Jahr 2020
* Fußbodenheizung im Erdgeschoss
* Untergeschoss und Dachgeschoss zu Wohnzwecken...
Preisinformation
4 Stellplätze
Weitere Informationen
Sonstiges
Es liegt ein Energiebedarfsausweis vor.
Dieser ist gültig bis 9.10.2033.
Endenergiebedarf beträgt 105.10 kwh/(m²*a).
Wesentlicher Energieträger der Heizung ist Gas.
Das Baujahr des Objekts lt. Energieausweis ist 2019.
Die Energieeffizienzklasse ist D.
GELDWÄSCHE: Als...
Anbieter der Immobilie
VON POLL IMMOBILIEN Hamburg-Alstertal - Sandra Husemann
Poppenbütteler Weg 191a, 22399 Hamburg
Online-ID: 2nukt56
Referenznummer: 26 101 005
Finde Angebote wie dieses
Hier geht es zu unserem Impressum, den Allgemeinen Geschäftsbedingungen, den Hinweisen zum Datenschutz und nutzungsbasierter Online-Werbung.