
BW-Bank Immobilienvermittlung
Herr Anton Usinger
071 ···
Nr. anzeigenPreise & Kosten
Provision für Käufer
3,57 % inkl. MwSt.
Lage
Dieses Haus liegt in der "Gartenstadt Luginsland" - in einer ruhigen Seitenstraße. Die Umgebungsbebauung besteht aus vergleichbaren Häusern. Oberhalb des Neckartales wohnen Sie in grüner Umgebung. Busverbindung besteht zum S-Bahnhof Untertürkheim. Kleinere Einkaufsgeschäfte sind in der Nähe ebenso wie Schule und Kindergarten...
Das Haus
Kategorie
Doppelhaushälfte
Baujahr
1928
Bezug
Sofort frei!
Energie & Heizung
Warum sehe ich diese Anzeige? – Du siehst diese Anzeige basierend auf Ihrer Navigation auf unserer Website und den Suchkriterien, die du verwendet hast.
Energieausweistyp
Bedarfsausweis
Gebäudetyp
Wohngebäude
Baujahr laut Energieausweis
1929
Wesentliche Energieträger
Gas
Gültigkeit
21.10.2025 bis 21.10.2035
Effizienzklasse
H
Endenergiebedarf
384,90 kWh/(m²·a)
Weitere Energiedaten
Haustyp
Massivhaus
Energieträger
Gas
Heizungsart
Ofen
Details
Objektbeschreibung
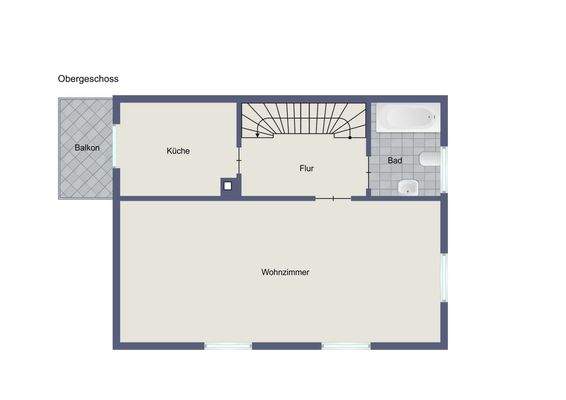
Diese DHH mit Garage wurde 1928 auf einem ca. 208 m² großen Grundstück erbaut. Das Haus hat ausreichend Platz für die Familie und der Garten vor dem Haus bietet Platz zum Toben oder Entspannen. Die Wohnfläche von ca. 110 m² verteilt sich auf drei Etagen. Im EG befinden sich zwei Zimmer, ein Hauswirtschaftsraum und ein WC. Im...
Ausstattung
Insgesamt gepflegter Zustand. Die isolierverglasten Holzfenster wurden Ende der 80er Jahre eingebaut. Ungefähr in der Zeit wurde auch die Fassade letztmalig verputzt und gestrichen. Beheizung erfolgt über Gas-Einzelöfen, Warmwasseraufbereitung duch Gas-Durchlauferhitzer. Tageslichtbad mit Badewanne, Waschbecken und WC. Der...
Weitere Informationen
Sonstiges
Haben wir Ihr Interesse geweckt? Dann lassen Sie sich jetzt das ausführliche Webexposé mit weiteren Unterlagen/Objektinformationen und Bildern zuschicken. Falls Sie nach Einsicht der Unterlagen einen Besichtigungswunsch haben, freuen wir uns über erneute Kontaktaufnahme über das Kontaktformular im Exposé, per...
Anbieter der Immobilie
BW-Bank Immobilienvermittlung
Heilbronner Straße 28, 70191 Stuttgart
Online-ID: 2nukh5m
Referenznummer: S-108871
Finde Angebote wie dieses
Hier geht es zu unserem Impressum, den Allgemeinen Geschäftsbedingungen, den Hinweisen zum Datenschutz und nutzungsbasierter Online-Werbung.