

Eva Schwab Immobilien - LEBELIEBERSCHOENER -
Herr/Frau Eva Schwab
016 ···
Nr. anzeigenPreise & Kosten
Provision für Käufer
Eine Courtage in Höhe von 3 % auf den Kaufpreis
zzgl. gesetzlich gültiger MwSt. ist bei notariellem Vertragsabschluss fällig und vom Käufer an Eva Theres Schwab, Immobilienberatung, zu zahlen. Irrtum und Zwischenverkauf/-vermietung vorbehalten.
Abschreibung/Anlage
Denkmalschutz-Afa
Lage
Die Wohnung liegt nahe der Pichelsdorfer Straße im grünen Teil von Berlin-Spandau. Die Umgebung ist geprägt von Wohnanlagen, viel Grün und einer ruhigen Nachbarschaft.
Entlang der Pichelsdorfer Straße finden sich zahlreiche Einkaufsmöglichkeiten – von Bio-Läden über Supermärkte bis zu Geschäften für den täglichen...
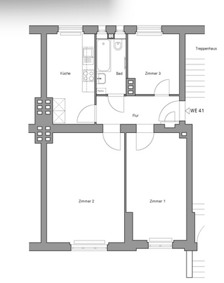
Die Wohnung
Wohnungslage
1. Geschoss
Bezug
sofort
Derzeitige Nutzung
frei
Wohnanlage
Energie & Heizung
Warum sehe ich diese Anzeige? – Du siehst diese Anzeige basierend auf Ihrer Navigation auf unserer Website und den Suchkriterien, die du verwendet hast.
Energieausweis: für diesen Gebäudetyp nicht notwendig
Weitere Energiedaten
Energieträger
Gas
Heizungsart
Zentralheizung
Details
Objektbeschreibung
In einem gepflegten Wohnumfeld im beliebten Spandauer Ortsteil rund um den Grimnitzseeweg befindet sich diese modernisierte und leerstehende Eigentumswohnung mit etwa 63 m² Wohnfläche.
Die Wohnung wurde in den letzten Jahren saniert und präsentiert sich in einem zeitgemäßen Zustand. Damit eignet sie sich sowohl für...
Ausstattung
Ausstattung:
- originale Dielenböden
- modernisiertes Badezimmer mit Dusche
- neue Einbauküche
- große Doppelkasten-Fenster
- historische Türen wurden überarbeitet
- helle Räume
- angenehme Deckenhöhe
- historische Treppenhäuser im Originalstil saniert
- Ausblicke in die Grünanlage mit altem...
Anbieter der Immobilie
Eva Schwab Immobilien - LEBELIEBERSCHOENER -
Sauerbruchstr. 20, 14482 Potsdam

Online-ID: 2nuhp5y
Finde Angebote wie dieses
Hier geht es zu unserem Impressum, den Allgemeinen Geschäftsbedingungen, den Hinweisen zum Datenschutz und nutzungsbasierter Online-Werbung.