

VR-Bank Landshut eG
Herr Thomas Finsterhölzl
087 ···
Nr. anzeigenPreise & Kosten
Provision für Käufer
Bitte beachte, das Angebot kann bei Vertragsabschluss die Zahlung einer Provision beinhalten. Weitere Informationen erhältst Du vom Anbieter.
Lage
Gehobenes Wohnen in allerbester Lage!
Hier wohnen Sie in einer der begehrtesten Lagen Landshuts. "Am Isargestade" finden Sie ein angenehmes Wohnumfeld, Lebensqualität und Erholung vor der Haustüre. Die hervorragende Lage bietet reichlich Raum für Natur, Freizeit, Arbeiten und Erholung bei gleichzeitiger unmittelbarer...
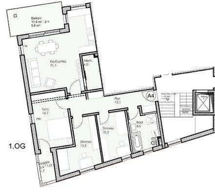
Die Wohnung
Wohnungslage
1. Geschoss
Wohnanlage
Details
Objektbeschreibung
Neubau von 23 Eigentumswohnungen im KFW 40 QNG- STANDARD mit Tiefgarage
Landshut, Am Isargestade.
Profitieren Sie hier von der Möglichkeit eines zinsgünstigen KFW-Förderkredits (Klimafreundlicher Neubau) bis zu 150.000,- EUR je Wohnung, mit verschiedensten Laufzeitvarianten und Zinsbindungen!
- 1 bis 5...
Weitere Informationen
Stichworte
Anzahl Balkone: 1, Anzahl der Wohneinheiten: 23, Bundesland: Bayern
Dokumente
Anbieter der Immobilie
VR-Bank Landshut eG
Rosengasse 350, 84028 Landshut

Online-ID: 2nuhp56
Referenznummer: 0-371
Finde Angebote wie dieses
Hier geht es zu unserem Impressum, den Allgemeinen Geschäftsbedingungen, den Hinweisen zum Datenschutz und nutzungsbasierter Online-Werbung.