

KHC Bauträger GmbH
Frau Janet Schrepel
037 ···
Nr. anzeigenPreise & Kosten
Provision für Käufer
provisionsfrei
Lage
Das Grundstück befindet sich in der Kleinstadt Hainichen. Fußläufig erreichen Sie alle Einrichtungen des täglichen Bedarfs. Die Autobahnauffahrt Hainichen an der A4 erreichen sie in wenigen Autominuten.
Das Haus
Kategorie
Einfamilienhaus
Baujahr
2025
Energie & Heizung
Warum sehe ich diese Anzeige? – Du siehst diese Anzeige basierend auf Ihrer Navigation auf unserer Website und den Suchkriterien, die du verwendet hast.
Energieausweistyp
Bedarfsausweis
Gebäudetyp
Wohngebäude
Baujahr laut Energieausweis
2025
Wesentliche Energieträger
Strom
Gültigkeit
seit 04.01.2016
Effizienzklasse
A+
Endenergiebedarf
24,12 kWh/(m²·a)
Weitere Energiedaten
Energieträger
Elektro
Heizungsart
Fußbodenheizung, Zentralheizung
Details
Objektbeschreibung
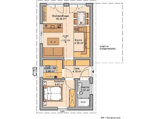
Das Architektenhaus Dia ist ein individuell geplantes Massivhaus mit hoher Energieeffizienz. Mit seinen 45 m² Wohnfläche ist es ein wahres Raumwunder. Im Inneren gelangt man von der Diele aus links in ein Duschbad und das Schlafzimmer. Geradeaus befindet sich der Hausanschluss-/ bzw. Wirtschaftsraum. Das Wohn-Ess-Zimmer mit...
Ausstattung
2 Zimmer, offene Küche, Diele, Dusche, Hauswirtschaftsraum
Das gezeigte Traumhaus im Überblick:
+ Schlüsselfertiges Massivhaus im Sinne der Ausstattungsbeschreibung "Easy"
+ Inklusive Bodenplatte
Beste Markenausstattung in jedem Kern-Haus:
+ Zimmermannsmäßiger Dachstuhl aus...
Weitere Informationen
Sonstiges
Kern-Haus
Kern-Haus baut individuelle und massive Architektenhäuser zu einem attraktiven Preis-Leistungs-Verhältnis - und das bereits mit einer Erfahrung seit 1980. Bei Kern-Haus erhalten Sie unter anderem 10 Jahre Gewährleistung auf die wesentlichen Bauleistungen, bis zu 24 Monate Preissicherheit sowie...
Anbieter der Immobilie

Online-ID: 2nueh58
Referenznummer: KH 04_05
Finde Angebote wie dieses
Hier geht es zu unserem Impressum, den Allgemeinen Geschäftsbedingungen, den Hinweisen zum Datenschutz und nutzungsbasierter Online-Werbung.