
Kienzle IMMOBILIEN
Herr Henry Kienzle
+49 ···
Nr. anzeigenPreise & Kosten
Provision für Käufer
provisionsfrei
Lage
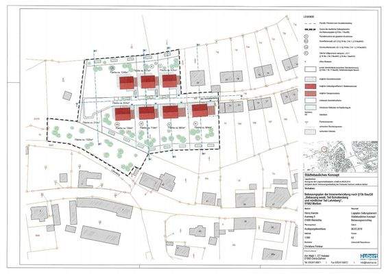
Das in einer Höhenlage von Meißen befindliche Baugrundstück liegt in einer absolut ruhigen Anliegerstraße, fernab von Lärm und Alltagsstreß.
Unser Grundstücksareal liegt in einer beliebten Wohngegend von Meißen, Obermeisa. Sie und Ihre Bauherren, Familien dürfen einen herrlichen Ausblick auf die Burg von Meißen...
Das Grundstück
Details
Objektbeschreibung
ACHTUNG BAUTRÄGER AUFGEPASST!
Bei diesem Verkaufsobjekt handelt es sich um ein rand erschlossenes Areal, welches sich in bester Wohnlage von Meißen, dirket am Schottenberg, am Ende einer Sackgasse befindet. Von unserem Filetstück genießen Sie künftig einen herrlich Panoramablick bis zur Albrechtsburg.
Das gesamte...
Anbieter der Immobilie
Kienzle IMMOBILIEN
Auerweg 5, 01689 Weinböhla
Online-ID: 2nue754
Referenznummer: BG 11605
Finde Angebote wie dieses
Hier geht es zu unserem Impressum, den Allgemeinen Geschäftsbedingungen, den Hinweisen zum Datenschutz und nutzungsbasierter Online-Werbung.