

Lohmeier + Partner GmbH
Herr Mirko Petring
052 ···
Nr. anzeigenPreise & Kosten
Provision für Käufer
provisionsfrei
Die Wohnung
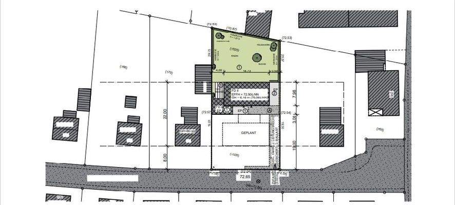
Wohnungslage
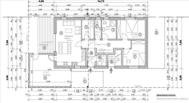
Erdgeschoss
Wohnanlage
Energie & Heizung
Warum sehe ich diese Anzeige? – Du siehst diese Anzeige basierend auf Ihrer Navigation auf unserer Website und den Suchkriterien, die du verwendet hast.
Weitere Energiedaten
Haustyp
KfW 40
Heizungsart
Fußbodenheizung, Luft-/Wasser-Wärmepumpe
Details
Objektbeschreibung
Neubau eines kleines 2-Familienhauses auf großem Grundstück. Privatsphäre wird hier uneingeschränkt berücksichtigt. Jede Wohnung hat Ihren eigenen Hauseingang.
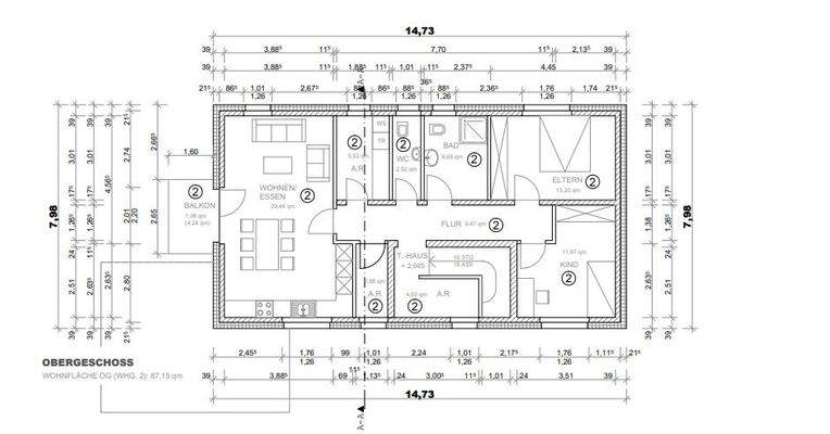
Diese Wohnungen verfügen über zwei Schlafzimmer, ein großzügiges Badezimmer mit ebenerdiger Dusche, ein Gäste-WC und eine offene Wohnküche mit Esszimmer. Die...
Ausstattung
Die Raumaufteilung der Wohnungen
+ großes Wohnzimmer mit Essbereich und Küche
+ 2 Schlafzimmer
+ Abstellraum mit Waschplatz
+ Badezimmer mit barrierefreie Dusche
+ Gäste-WC
+ EG : Gartennutzung mit Terrasse oder 1. OG: Balkon
Allgemeine Ausstattung der Wohnungen
+ 3-fach verglaste Fenster...
Weitere Informationen
Sonstiges
Info: Anzahl Etagen: 2
WE 2 im 1.OG 3ZKB GWC 87,15 m² 399.000 €
Anbieter der Immobilie
Lohmeier + Partner GmbH
Elpke 115, 33605 Bielefeld

Online-ID: 2nucv57
Finde Angebote wie dieses
Hier geht es zu unserem Impressum, den Allgemeinen Geschäftsbedingungen, den Hinweisen zum Datenschutz und nutzungsbasierter Online-Werbung.