
Crozilla.com
Eurovilla
+38 ···
Nr. anzeigenPreise & Kosten
Provision für Käufer
Bitte beachte, das Angebot kann bei Vertragsabschluss die Zahlung einer Provision beinhalten. Weitere Informationen erhältst Du vom Anbieter.
Die Wohnung
Wohnungslage
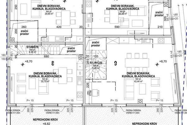
2. Geschoss
Details
Objektbeschreibung
Predstavljamo Vam projekt novogradnje u poznatom turistickom odredistu na otoku Pagu, Povljani. Projekt se sastoji od dvije zgrade modernog dizajna od kojih svaka ima 10 stambenih jedinica rasporedenih na ukupno 4 etaze. Zgrade se nalaze na odlicnoj i mirnoj lokacija koja je udaljena svega 250 metara od jedne od najpoznatijih...
Weitere Informationen
Stichworte
Anzahl der Schlafzimmer: 3, 1 Etagen
Anbieter der Immobilie
Crozilla.com
Nova cesta 60, 10000 ZAGREB
Online-ID: 2nubj5r
Referenznummer: 19473878_0
Finde Angebote wie dieses
Hier geht es zu unserem Impressum, den Allgemeinen Geschäftsbedingungen, den Hinweisen zum Datenschutz und nutzungsbasierter Online-Werbung.