
Die Finanzschützer
Frau Sandrine Schütze
+49 ···
Nr. anzeigenPreise & Kosten
Provision für Käufer
3,57 %
Die Maklercourtage beträgt 3,57 % inkl. der gesetzlichen Mehrwertsteuer (3 % Maklercourtage + 19 % MwSt.) aus dem beurkundeten Kaufpreis. Weitere Informationen siehe Provisionshinweis.
Lage
Die Erdgeschosswohnung befindet sich im Stadtzentrum von Frankenthal, einer mittelgroßen Stadt in der Metropolregion Rhein-Neckar. Das Viertel, in dem sich die Immobilie befindet, ist geprägt von charmanten Geschäften, gemütlichen Cafés und gastronomischen Angeboten. Die gut angebundene Lage bietet eine Vielzahl von...
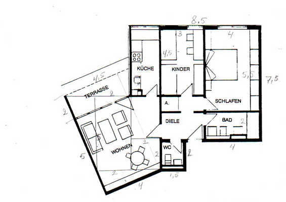
Die Wohnung
Wohnungslage
Erdgeschoss
Bezug
Sofort
Wohnanlage
Energie & Heizung
Warum sehe ich diese Anzeige? – Du siehst diese Anzeige basierend auf Ihrer Navigation auf unserer Website und den Suchkriterien, die du verwendet hast.
Energieausweistyp
Verbrauchsausweis
Gebäudetyp
Wohngebäude
Wesentliche Energieträger
Gas
Gültigkeit
27.02.2024 bis 26.02.2034
Effizienzklasse
D
Endenergieverbrauch
102,68 kWh/(m²·a)
Weitere Energiedaten
Energieträger
Gas
Details
Objektbeschreibung
Sie sind auf der Suche nach einer gut geschnittenen 3-Zimmer-Eigentumswohnung zur Selbstnutzung oder Kapitalanlage? Dann lesen Sie sich dieses Angebot einmal genauer durch!
Diese gepflegte Drei-Zimmer-Eigentumswohnung mit einer Wohnfläche von ca. 81 m² befindet sich in einem im Jahr 1984 erbauten Mehrfamilienhaus und...
Ausstattung
- Einbauküche - ca. 10 Jahre alt und sehr selten genutzt
- eigene kleine Terrasse
- Tiefgaragenstellplatz - abgeschlossen und sicher
- Aufzug vorhanden
- sofort bezugsfähig
- Außendämmung des Gebäudes bereits durchgeführt
- Gasheizung von 2010
- neue Lüfter für die Bäder bereits vorhanden
Preisinformation
1 Garagenstellplatz
Weitere Informationen
Provisionshinweis
3,57 %
Die Maklercourtage beträgt 3,57 % inkl. der gesetzlichen Mehrwertsteuer (3 % Maklercourtage + 19 % MwSt.) aus dem beurkundeten Kaufpreis. Die Provision ist verdient und fällig mit Beurkundung des notariellen Kaufvertrages. Der Immobilienmakler hat einen provisionspflichtigen Maklervertrag mit...
Anbieter der Immobilie
Die Finanzschützer
Grabenstraße 29, 35444 Biebertal
Online-ID: 2nua65m
Referenznummer: 130372412#u1tGBU
Finde Angebote wie dieses
Hier geht es zu unserem Impressum, den Allgemeinen Geschäftsbedingungen, den Hinweisen zum Datenschutz und nutzungsbasierter Online-Werbung.