

Leo Wacker Immobilien
Herr Leo Wacker
030 ···
Nr. anzeigenPreise & Kosten
Provision für Käufer
3,57 % vom Kaufpreis inkl. MwSt.
Lage
Die Wohnung liegt in einer der besonderen Wasserlagen Charlottenburgs: auf der Mierendorff-Insel, umgeben von Spree und Landwehrkanal, direkt am begrünten Spreeufer. Die Promenaden und Uferwege beginnen praktisch vor der Tür und führen durch viel Grün bis zum Charlottenburger Schloss mit seinem weitläufigen Schlossgarten...
Die Wohnung
Kategorie
Terrassenwohnung
Wohnungslage
Erdgeschoss
Bezug
sofort
Derzeitige Nutzung
frei
Wohnanlage
Energie & Heizung
Warum sehe ich diese Anzeige? – Du siehst diese Anzeige basierend auf Ihrer Navigation auf unserer Website und den Suchkriterien, die du verwendet hast.
Energieausweistyp
Bedarfsausweis
Gebäudetyp
Wohngebäude
Baujahr laut Energieausweis
2016
Wesentliche Energieträger
Fernwärme
Gültigkeit
20.10.2017 bis 20.10.2027
Effizienzklasse
B
Endenergiebedarf
60,80 kWh/(m²·a)
Weitere Energiedaten
Energieträger
Fernwärme
Heizungsart
Fußbodenheizung, Zentralheizung
Details
Objektbeschreibung
Diese ansprechende, moderne Gartenwohnung mit eigenem zum Süden ausgerichteten Garten, direkt an der Spree in neuer, grüner Wohnanlage (Erstbezug 2018) mit 93 Wohnungen in ruhiger Lage und verfügt über eine gehobene Innenausstattung mit zwei attraktiven, lichtdurchfluteten Zimmern mit Wasserblick!
Das Apartment ist...
Ausstattung
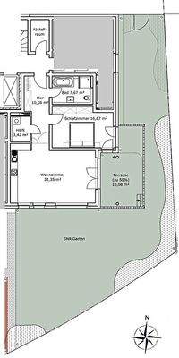
Wohnfläche: 80,28 m² + Garten
Zimmer: 2
Garten: ja, als SNR
Bad: mit Wanne und Dusche
EBK: ja
Möbel: inkl.
Barrierefrei: ja
Fußbodenheizung: ja
Fernheizung: ja
Hauswirtschaftsraum: ja, mit WM-Stellplatz
Weitere Informationen
Ganz wichtig bei der Anfrage: Teilen Sie uns Ihre vollständigen Kontaktdaten: Vor- und Nachnamen, Adresse, Mail und Telefonnummer mit.
Seit einigen Jahren gilt in Deutschland das Geldwäschegesetz. Nach diesem Gesetz ist jedes Immobilienbüro verpflichtet, bei Kontaktaufnahme die Identität des Kunden festzuhalten...
Anbieter der Immobilie
Leo Wacker Immobilien
Gleditschstr. 66, 10781 Berlin

Online-ID: 2nua45k
Referenznummer: GU 52
Finde Angebote wie dieses
Hier geht es zu unserem Impressum, den Allgemeinen Geschäftsbedingungen, den Hinweisen zum Datenschutz und nutzungsbasierter Online-Werbung.