
Debeka Bausparkasse AG
Herr Nenad Pancic
Kontaktiere den Anbieter schriftlich, es ist keine Telefonnummer hinterlegt.
Preise & Kosten
Provision für Käufer
3,57% inkl. MwSt.
Lage
Der angebotene Winkelbungalow liegt im beliebten Ortsteil Egestorf der Stadt Barsinghausen, eingebettet im ruhigen und grünen Umland am Nordrand des Deisters in der Region Hannover. Egestorf verbindet naturnahe Wohnqualität mit einer sehr guten Infrastruktur und eignet sich besonders für Familien, Paare und Pendler...
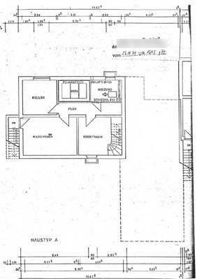
Das Haus
Kategorie
Reihenendhaus
Baujahr
1975
Bezug
Nach Absprache
Energie & Heizung
Warum sehe ich diese Anzeige? – Du siehst diese Anzeige basierend auf Ihrer Navigation auf unserer Website und den Suchkriterien, die du verwendet hast.
Energieausweistyp
Bedarfsausweis
Gebäudetyp
Wohngebäude
Wesentliche Energieträger
Öl
Gültigkeit
11.02.2026 bis 10.02.2036
Effizienzklasse
G
Endenergiebedarf
231,10 kWh/(m²·a)
Weitere Energiedaten
Energieträger
Öl
Heizungsart
offener Kamin, Zentralheizung
Details
Objektbeschreibung
Dieser gepflegte Einfamilien-Winkelbungalow aus dem Jahr 1975 befindet sich in ruhiger Wohnlage von Egestorf, einem Ortsteil von Barsinghausen. Das Haus überzeugt durch seine großzügige Raumaufteilung, zahlreiche Modernisierungen sowie das weitläufige Eckgrundstück mit liebevoll angelegtem Garten.
Das 873 m² große...
Weitere Informationen
Sonstiges
Die genannten Informationen beruhen auf den Angaben des Verkäufers. Für die Richtigkeit und Vollständigkeit der Angaben wird keine Gewähr oder Haftung übernommen.
Seit dem 25. Mai 2018 gilt in Deutschland die EU-Datenschutz-Grundverordnung (DS-GVO). Sie regelt, wie private Unternehmen und öffentliche...
Anbieter der Immobilie

Debeka Bausparkasse AG
Debeka-Platz 2, 56073 Koblenz
Herr Nenad Pancic
Dein Ansprechpartner
Kontaktiere den Anbieter schriftlich, es ist keine Telefonnummer hinterlegt.
Online-ID: 2nu9l5k
Referenznummer: 1009564#4Fd7ty
Finde Angebote wie dieses
Hier geht es zu unserem Impressum, den Allgemeinen Geschäftsbedingungen, den Hinweisen zum Datenschutz und nutzungsbasierter Online-Werbung.