

dein immopartner
Herr Marcel di Novi
071 ···
Nr. anzeigenPreise & Kosten
Provision für Käufer
provisionsfrei
Lage
Lagebeschreibung
Affalterbach ist eine attraktive Gemeinde im Landkreis Ludwigsburg in Baden-Württemberg und liegt etwa 15 Kilometer nordöstlich der Landeshauptstadt Stuttgart. Die Gemeinde zeichnet sich durch ihre ruhige, naturnahe Lage sowie durch ihre hervorragende Anbindung an den Großraum Stuttgart aus.
Die...
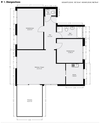
Die Wohnung
Wohnungslage
1. Geschoss
Bezug
01.07.2026
Wohnanlage
Energie & Heizung
Warum sehe ich diese Anzeige? – Du siehst diese Anzeige basierend auf Ihrer Navigation auf unserer Website und den Suchkriterien, die du verwendet hast.
Energieausweistyp
Bedarfsausweis
Gebäudetyp
Wohngebäude
Baujahr laut Energieausweis
1981
Wesentliche Energieträger
Öl
Gültigkeit
01.02.2025 bis 02.02.2035
Endenergiebedarf
263,00 kWh/(m²·a)
Weitere Energiedaten
Energieträger
Öl
Heizungsart
Fußbodenheizung, Zentralheizung
Details
Objektbeschreibung
Wohnen mit Komfort, Ruhe und Lebensqualität
Diese außergewöhnlich große 3-Zimmer-Wohnung im 1. Obergeschoss eines gepflegten Mehrfamilienhauses vereint modernen Wohnkomfort mit einer idyllischen, naturnahen Lage in Affalterbach. Auf großzügigen ca. 98,79 m² Wohnfläche erwartet Sie ein durchdachtes Raumkonzept, das...
Ausstattung
- Dachterrasse 16qm
- Fußbodenheizung
- Einbauküche
- Stellplatz
- Gäste WC
- Tageslichtbad
- Gegensprechanlage
- Saniert & Renoviert
Weitere Informationen
**Wichtige Hinweise und Informationen**
**Hinweis zu den Angaben:**
Die von uns bereitgestellten Informationen basieren ausschließlich auf den Angaben unseres Auftraggebers. Wir übernehmen keine Gewähr für die Vollständigkeit, Richtigkeit oder Aktualität dieser Daten. Auch für die Genauigkeit der Grundrisse...
Anbieter der Immobilie
dein immopartner
Brandenburger Str. 22, 71640 Ludwigsburg

Online-ID: 2nu265u
Finde Angebote wie dieses
Hier geht es zu unserem Impressum, den Allgemeinen Geschäftsbedingungen, den Hinweisen zum Datenschutz und nutzungsbasierter Online-Werbung.