
ohne-makler.net - Immobilien selbst vermarkten
Privat von Gerhard Köpple
Kontaktiere den Anbieter schriftlich, es ist keine Telefonnummer hinterlegt.
Preise & Kosten
Provision für Käufer
provisionsfrei
Lage
Die Wohnung liegt in einer ruhigen Wohngegend von Überlingen, fußläufig sind die Bushaltestelle (Stadtbus)(110 m) ein Ärztehaus (180 m) und eine Lebensmittelmarkt (350 m) erreichbar. Mit dem Stadtbus erschließt sich Ihnen die ganze Stadt mit dem Bahnhof, dem Landungsplatz und dem Bodensee.
Infrastruktur (im Umkreis von 5...
Die Wohnung
Wohnungslage
2. Geschoss
Bezug
sofort
Wohnanlage
Energie & Heizung
Warum sehe ich diese Anzeige? – Du siehst diese Anzeige basierend auf Ihrer Navigation auf unserer Website und den Suchkriterien, die du verwendet hast.
Energieausweistyp
Verbrauchsausweis
Gebäudetyp
Wohngebäude
Endenergieverbrauch
113,00 kWh/(m²·a) - Warmwasser enthalten
Weitere Energiedaten
Energieträger
Fernwärme
Heizungsart
Zentralheizung
Details
Objektbeschreibung
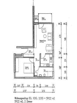
Diese gepflegte 2-Zimmer-Wohnung befindet sich im 2. Obergeschoss einer kleinen, ruhigen Wohneinheit und bietet eine klare, funktionale Raumaufteilung.
Sie umfasst ein Schlafzimmer, einen angenehm proportionierten Wohn-/Essbereich sowie ein Badezimmer mit Fenster. Die bestehende Einbauküche ist zweckmäßig, lässt jedoch...
Ausstattung
Balkon, Keller, Fahrstuhl, Duschbad, Einbauküche, Parkett, Fliesen
Bemerkungen:
2-Zimmer-Wohnung in einer Seniorenwohnanlage im 2. OG mit Aufzug.
Eingang mit Gardrobe 4,02 qm
Wohn-Esszimmer 21,73 qm
Flur 3,03 qm
Balkon mit Markise...
Preisinformation
1 Tiefgaragenstellplatz, Kaufpreis: 20.000,00 EUR
Weitere Informationen
Sonstiges
Heizungsart: Zentralheizung
Energieträger: Fernwärme
Makleranfragen nicht erwünscht. Nach § 7 UWG sind unaufgeforderte Kontaktaufnahmen durch Makler ohne ausdrückliche Einwilligung des Empfängers verboten!
ohne-makler (OM) ist weder Anbieter noch Vermittler der Immobilie. OM betreibt eine...
Anbieter der Immobilie
ohne-makler.net - Immobilien selbst vermarkten
Humboldtstr. 25 A, 21509 Glinde
Privat von Gerhard Köpple
Dein Ansprechpartner
Kontaktiere den Anbieter schriftlich, es ist keine Telefonnummer hinterlegt.
Online-ID: 2nu255l
Referenznummer: 425188
Finde Angebote wie dieses
Hier geht es zu unserem Impressum, den Allgemeinen Geschäftsbedingungen, den Hinweisen zum Datenschutz und nutzungsbasierter Online-Werbung.