
Woide Immobilien GmbH
Herr Vitali Woide
004 ···
Nr. anzeigenPreise & Kosten
Provision für Käufer
Bitte beachte, das Angebot kann bei Vertragsabschluss die Zahlung einer Provision beinhalten. Weitere Informationen erhältst Du vom Anbieter.
Lage
Die Hausboote befinden sich im Nordhafen von Peenemünde auf der Ostsee-Insel Usedom, Mecklenburg-Vorpommern. Peenemünde, die nördlichste Gemeinde der Insel, liegt am Übergang des Peenestroms zur Ostsee. Die Lage bietet maritimes Flair und historische Bedeutung - bekannt durch die Raketenentwicklung in den 1930er Jahren. Heute...
Das Renditeobjekt
Kategorie
Wohnanlage
Baujahr
2020
Bezug
sofort
Details
Objektbeschreibung
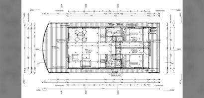
Zum Verkauf steht ein schwimmendes Ferienhaus im Yachthafen Peenemünde.
Das Floating House Typ Floating 44 bietet zwei separate Schlafzimmer, einen Wohnbereich mit integrierter Küche, ein Badezimmer mit Dusche sowie ein separates WC.
Eine Terrasse am Bug ermöglicht das Genießen von sonnigen Tagen und...
Ausstattung
- Wohnfläche: ca. 44 m²
- Terrassenbereiche am Bug mit ca. 15m²
- 2 Schlafräume mit Doppelbetten
- 1 Badezimmer; 1 WC-Raum
- Einbauküche
- Luft-Wärmepumpen Heizung mit Klimaanlage
Maße: 6 m Breite x 14 m Länge
Tiefgang: 0,7m
Weitere Informationen
Sonstiges
****
Wenn Sie eine Besichtigung anfragen möchten, geben Sie bitte Ihre Telefonnummer und die bevorzugten Zeiten an, zu denen Sie am besten verfügbar sind. Wir werden unser Möglichstes tun, um diese Wünsche zu berücksichtigen und die Besichtigung zu arrangieren.
**
Haftungsausschluss:
Alle...
Anbieter der Immobilie
Woide Immobilien GmbH
Bahnhofstraße 18 , 37688 Beverungen
Online-ID: 2nu235b
Referenznummer: 127130772
Finde Angebote wie dieses
Hier geht es zu unserem Impressum, den Allgemeinen Geschäftsbedingungen, den Hinweisen zum Datenschutz und nutzungsbasierter Online-Werbung.