
Sallier Immobilien e. K.
Herr Tobias Schmidt
004 ···
Nr. anzeigenPreise & Kosten
Provision für Käufer
provisionsfrei
Lage
Ihr neues Zuhause befindet sich im Lüneburger Stadtteil Kreideberg. Der Stadtteil zählt zu den etablierten und gefragten Wohnlagen der Hansestadt und überzeugt durch seine gewachsene Struktur sowie die gute infrastrukturelle Anbindung.
In unmittelbarer Umgebung befinden sich zahlreiche Einkaufsmöglichkeiten für den...
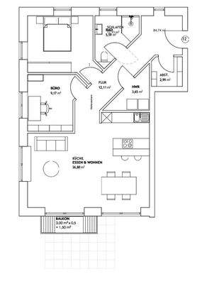
Die Wohnung
Bezug
nach Vereinbarung
Wohnanlage
Energie & Heizung
Warum sehe ich diese Anzeige? – Du siehst diese Anzeige basierend auf Ihrer Navigation auf unserer Website und den Suchkriterien, die du verwendet hast.
Energieausweistyp
Bedarfsausweis
Gebäudetyp
Wohngebäude
Baujahr laut Energieausweis
2024
Wesentliche Energieträger
LUFTWP
Gültigkeit
bis 22.08.2034
Effizienzklasse
A+
Endenergiebedarf
23,30 kWh/(m²·a)
Weitere Energiedaten
Heizungsart
Luft-/Wasser-Wärmepumpe
Details
Objektbeschreibung
Erstbezug: Moderne 2,5-Zimmer-Wohnung mit Sonnenbalkon und Aufzug - energieeffizient & stadtnah
Diese hochwertige 2,5-Zimmer-Wohnung im I. Obergeschoss überzeugt mit durchdachtem Grundriss, moderner Ausstattung und einer attraktiven Stadtlage mit kurzen Wegen in die Lüneburger Innenstadt.
Auf ca. 81 m²...
Preisinformation
1 Stellplatz, Kaufpreis: 10.000,00 EUR
Weitere Informationen
Stichworte
Anzahl der Schlafzimmer: 2, Anzahl der Badezimmer: 1, Anzahl Balkone: 1
Anbieter der Immobilie
Sallier Immobilien e. K.
Auf dem Meere 47, 21335 Lüneburg
Online-ID: 2ntyx5k
Referenznummer: 1552_22
Finde Angebote wie dieses
Hier geht es zu unserem Impressum, den Allgemeinen Geschäftsbedingungen, den Hinweisen zum Datenschutz und nutzungsbasierter Online-Werbung.