

Alfred Huber Immobilien
Herr Alfred Huber
086 ···
Nr. anzeigenPreise & Kosten
Provision für Käufer
3,57 % inkl. Mwst.
Lage
Weildorf ist ein idyllischer Gemeindeteil des Marktes Teisendorf im oberbayerischen Landkreis Berchtesgadener Land und liegt im malerischen Rupertiwinkel - einer der schönsten Regionen im Alpenvorland. Die Umgebung ist geprägt von sanften Hügeln, weitläufigen Wiesen und einer beeindruckenden Bergkulisse. Unweit erhebt sich...
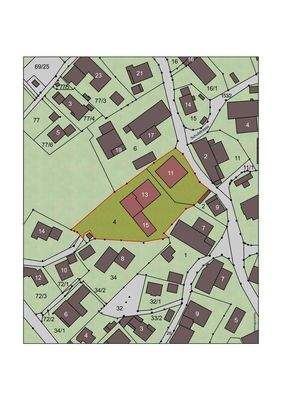
Das Grundstück
Details
Objektbeschreibung
Zum Verkauf steht ein großzügiges Wohnbaugrundstück im Ortsteil Weildorf der Marktgemeinde Teisendorf (Flur-Nr.: 4). Mit einer Gesamtfläche von ca. 3.841 m² bietet das Grundstück ein attraktives Entwicklungspotenzial für ein Wohnbauprojekt in gefragter Lage im Berchtesgadener Land.
Das Grundstück ist derzeit noch...
Weitere Informationen
Sonstiges
Wir sind für Sie da!
Besuchen Sie unser großes Immobilienbüro im Zentrum von Freilassing, Münchener Str. 10.
Büroöffnungszeiten - ohne Terminvereinbarung:
Montag bis Donnerstag von 9 bis 12 Uhr
Geschäftszeiten:
Montag bis Freitag: 8 bis 19 Uhr
Samstag: 9 bis 14 Uhr
Sonntag...
Anbieter der Immobilie

Online-ID: 2ntxg5u
Referenznummer: D-932
Finde Angebote wie dieses
Hier geht es zu unserem Impressum, den Allgemeinen Geschäftsbedingungen, den Hinweisen zum Datenschutz und nutzungsbasierter Online-Werbung.