GVS-Schwarz Immobilien GmbH

Frau Susann Reifert

Schöne Gewerbeeinheit, Büro oder Laden,ASR, WC, Keller, Stellplatz

€ 560
Nettomiete zzgl. NK
k.A.
Bürofläche
k.A.
Teilbare Fläche
2,5
Zimmer

Der Anbieter dieses Objekts hat gegenüber der AVIV Germany GmbH als Betreiber dieses Online-Marktplatzes erklärt, nicht als Unternehmer im Sinne des § 1 KSchG zu handeln. Die im Verbraucherschutzrecht der Union verankerten Verbraucherrechte (insbesondere Informationspflichten und Rücktritts- bzw. Widerrufsrechte) finden auf den Vertrag zwischen dem Anbieter des Objekts und Ihnen (dem Interessenten) keine Anwendung.

Provisionsfrei
Gewerblicher Anbieter

Der Anbieter dieses Objekts hat gegenüber der AVIV Germany GmbH als Betreiber dieses Online-Marktplatzes erklärt, als Unternehmer im Sinne des § 1 KSchG zu handeln.

AdresseTrachenberger Str. 13
01129 Dresden 
(Pieschen-Nord/Trachenberge)
Auf Karte ansehen

Preise & Kosten

Nettomiete € 560 Nebenkosten € 140 Heizkosten in Warmmiete enthalten Warmmiete € 700

Kaution

1.120,00

Provision für Mieter

provisionsfrei

Lage

Der Stadtteil im Nordwesten von Dresden wurde 1992 zum zweitgrößten städtischen Sanierungsgebiet erklärt. Zahlreiche Häuser wurden seitdem modernisiert. Aus ehemaligen Industriebetrieben entstanden das Einkaufszentrum 'Mälzerei' mit Märkten, Shops und Restaurants sowie ein Büro- und Geschäftshaus an der Riesaer Straße. Der...

Mehr anzeigen

Büro-/Praxisfläche

Bezug

auf Anfrage

Mindestmietdauer

12 Monate

Geschoss

Erdgeschoss

  • Böden: Fliesenboden
  • Raumaufteilung flexibel
  • Altbau (bis 1945), gepflegt
  • 1 Stellplatz

Energie & Heizung

Wärme

0 100 200 300 400 500 600 700 800 900 1000 +

Energieausweistyp

Bedarfsausweis

Gebäudetyp

Nicht-Wohngebäude

Endenergiebedarf (Wärme)

123,00 kWh/(m²·a)

Weitere Energiedaten

Heizungsart

Zentralheizung

Details

Objektbeschreibung

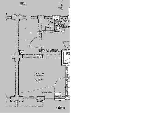
Schöne geräumige Gewerbeeinheit noch unrenoviert. Könnte nach Ihren Vorstellungen hergerichet werden bzw. der Mieter kann dies selbst vornehmen gegen eine mietfreie Zeit. Es gibt einen großen Verkaufsraum mit Schaufenster und separater Eingangstür.

Die Fliesen im Küchenbereich können entfernt bzw. ersetzt werden. Es...

Mehr anzeigen

Ausstattung

Im Besichtigungstermin kann alles persönlich besprochen werden.

Weitere Informationen

Sonstiges
BODENBELAG:
Laminat
BAD:
Bad mit Wanne
KÜCHE:
separate Küche, Küche mit Fenster
WASCHEN:
Anschluss in Küche, Trocknen im Hof
WEITERES:
Balkon, Gartenmitbenutzung, Zentralheizung, Abstell: Keller
Anmerkung: Die von uns gemachten Angaben haben wir nach bestem Wissen und Gewissen nach...

Mehr anzeigen

Anbieter der Immobilie

Partner

GVS-Schwarz Immobilien GmbH

im Durchschnitt  4,50  Sterne
(bei 17 Bewertungen)

Podemusstr. 8, 01157 Dresden

user

Frau Susann Reifert

Dein Ansprechpartner

Anbieter-Impressum

Online-ID: 2ntvp52

Referenznummer: 824

Finde Angebote wie dieses

imageimageimage

Hier geht es zu unserem Impressum, den Allgemeinen Geschäftsbedingungen, den Hinweisen zum Datenschutz und nutzungsbasierter Online-Werbung.