

Danhaus - Paulo Granja Handelsvertretung für die Danhaus Deutschland GmbH
Herr Paulo Granja
Kontaktiere den Anbieter schriftlich, es ist keine Telefonnummer hinterlegt.
Preise & Kosten
Provision für Käufer
provisionsfrei
Lage
Das Grundstück befindet sich in einer gehobenen, durch freistehende Häuser geprägten, Wohnlage.
Die Lage zeichnet sich durch ihre Familienfreundlichkeit aus, da Kindergärten sowie Schulen von der Grundschule bis zum Gymnasium bequem zu Fuß erreichbar sind. Die Nahversorgung ist in jeder Hinsicht gewährleistet, da sich in...
Das Haus
Kategorie
Mehrfamilienhaus
Energie & Heizung
Warum sehe ich diese Anzeige? – Du siehst diese Anzeige basierend auf Ihrer Navigation auf unserer Website und den Suchkriterien, die du verwendet hast.
Weitere Energiedaten
Heizungsart
Fußbodenheizung
Details
Objektbeschreibung
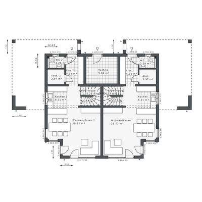
Wie Sie die Grundstückspreise senken? Bauen Sie ein Doppelhaus als Generationenhaus und laden Sie eine Familie ein, Nachbar zu werden. Dieses Generationenhaus ist die perfekte Möglichkeit, in Gemeinschaft das eigene Haus zu realisieren. Auf gute Nachbarschaft!
Verschiedene Grundrissvarianten und Architekturelemente...
Ausstattung
Die vorgestellte Projektierung umfasst Leistungen entsprechend der Bau- und Leistungsbeschreibung als Grundlage für die weitere Planung und Kalkulation.
In definierten Ausbaustufen werden hier umfangreiche Leistungen dargestellt - übersichtlich und transparent.
Treffen Sie Ihre persönliche Wahl:
Das...
Weitere Informationen
Sonstiges
Wenn Sie auf der Suche nach einer Immobilieninvestition sind, die genau Ihren Anforderungen entspricht, zögern Sie nicht länger. Kontaktieren Sie uns für ein Gespräch.
Die dargestellten Bilder und Grundrisse sind Beispiele und können Sonderausstattungen enthalten, die nicht im Preis enthalten sind. Die...
Anbieter der Immobilie
Danhaus - Paulo Granja Handelsvertretung für die Danhaus Deutschland GmbH
Porschestraße 10, 41564 Kaarst

Herr Paulo Granja
Dein Ansprechpartner
Kontaktiere den Anbieter schriftlich, es ist keine Telefonnummer hinterlegt.
Online-ID: 2ntvm5h
Referenznummer: PG-51265
Finde Angebote wie dieses
Hier geht es zu unserem Impressum, den Allgemeinen Geschäftsbedingungen, den Hinweisen zum Datenschutz und nutzungsbasierter Online-Werbung.