
Sparda Immobilien GmbH
Herr Kai Apel
004 ···
Nr. anzeigenPreise & Kosten
Provision für Käufer
provisionsfrei
Lage
Die Immobilie liegt in der begehrten Lage Wismar-Redentin "An der Bucht" - eine der wertstabilsten Adressen der Hansestadt. Sie verbindet idyllische Ostsee-Nähe mit perfekter Infrastruktur und eignet sich ideal für Familien sowie anspruchsvolle Senioren.
Für Familien besonders attraktiv: kurze, sichere Wege zu Schulen...
Das Haus
Kategorie
Einfamilienhaus
Baujahr
1986
Energie & Heizung
Warum sehe ich diese Anzeige? – Du siehst diese Anzeige basierend auf Ihrer Navigation auf unserer Website und den Suchkriterien, die du verwendet hast.
Energieausweistyp
Verbrauchsausweis
Gebäudetyp
Wohngebäude
Baujahr laut Energieausweis
2020
Wesentliche Energieträger
ELEKTRO
Gültigkeit
bis 28.12.2035
Effizienzklasse
A
Endenergieverbrauch
50,00 kWh/(m²·a)
Weitere Energiedaten
Heizungsart
Luft-/Wasser-Wärmepumpe, offener Kamin
Details
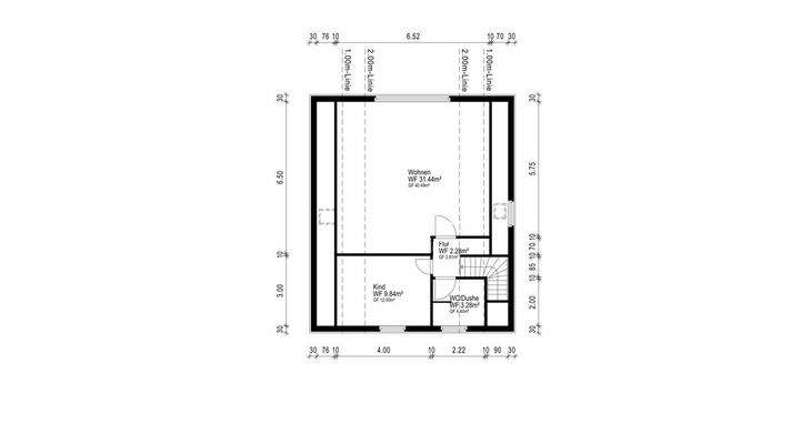
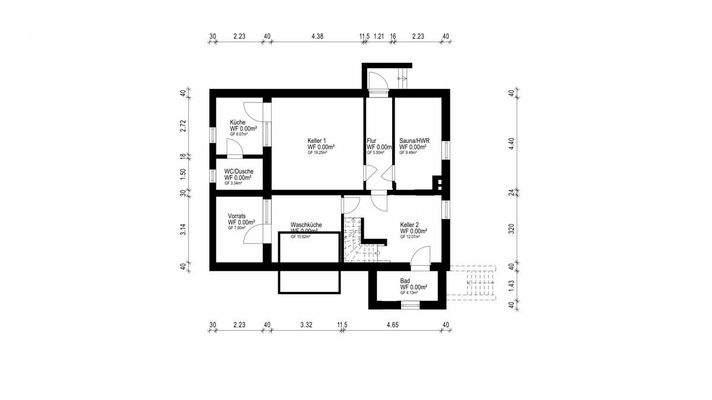
Objektbeschreibung
Willkommen in Ihrem Traumhaus in Wismar-Redentin! Dieses Anwesen verfügt über ein Einfamilienhaus welches 2021 mit einem neuen Reetdach versehen wurde und über ein Nebengebäude. Beide stehen auf einem großzügigen Grundstück von ca. 1.385 m². Das im Jahr 1986 erbaute und in 2020 saniert und aufwendig umgebaute, gepflegte...
Ausstattung
Fenster:
Kunststofffenster Isolierverglasung
Heizung und Warmwasser:
Luft-Wärmepumpe, Photovoltaikanlage mit 30Kw Speicher
Bodenbeläge:
Fliesen, Echtholz Parkett, Laminat Parkett
Küche:
offene Einbauküche mit Granitplatte
Bäder:
DG Duschbad mit WC Dusche
EG Gäste WC
UG...
Preisinformation
2 Carportplätze
3 Stellplätze
1 Garagenstellplatz
Weitere Informationen
Sonstiges
Die Courtage in Höhe von 3,57 % inkl. der gesetzl. gültigen MwSt. ist vom Käufer an die Sparda Immobilien GmbH zu zahlen.
Weitere attraktive Angebote finden Sie auch auf www.spardaimmobilien.de
Stichworte
Garage vorhanden, Stellplatz vorhanden, Fahrradraum, Nutzfläche: 84,00 m², vermietbare...
Anbieter der Immobilie
Sparda Immobilien GmbH
Beim Strohhause 27, 20097 Hamburg
Online-ID: 2nttv5t
Referenznummer: KA_9851
Finde Angebote wie dieses
Hier geht es zu unserem Impressum, den Allgemeinen Geschäftsbedingungen, den Hinweisen zum Datenschutz und nutzungsbasierter Online-Werbung.