
Sperr & Zellner Immobilien GmbH
Herr Thomas Schneider
004 ···
Nr. anzeigenPreise & Kosten
Provision für Käufer
2,38 % Käuferprovision inkl. MwSt.
Lage
Die Albert-Einstein-Straße befindet sich im Industriegebiet Altenerding, einem gewachsenen und gefragten Gewerbestandort der Stadt. Das Umfeld ist geprägt von mittelständischen Unternehmen, Dienstleistern und Handwerksbetrieben und bietet ideale Voraussetzungen für wirtschaftliches Arbeiten. Die Lage zeichnet sich durch ihre...
Das Haus
Kategorie
Bungalow
Baujahr
1980
Energie & Heizung
Warum sehe ich diese Anzeige? – Du siehst diese Anzeige basierend auf Ihrer Navigation auf unserer Website und den Suchkriterien, die du verwendet hast.
Weitere Energiedaten
Energieträger
Gas
Heizungsart
Zentralheizung
Details
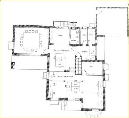
Objektbeschreibung
Dieser modern gestaltete, gewerblich genutzte Bungalow vereint repräsentative Büro- und Besprechungsflächen mit funktionalen Lager- und Abstellräumen und bietet damit ideale Voraussetzungen für einen vielseitig nutzbaren Unternehmensstandort. Das im Jahr 1980 errichtete Gebäude befindet sich auf einem ca. 680 m² großen...
Ausstattung
- moderne, ebenerdige Gewerbeimmobilie in Bungalow-Bauweise
- helle Büro- und Besprechungsräume
- offene Bürobereiche mit mehreren Arbeitsplätzen
- Konferenz-/Besprechungsraum
- Abgehängte Decken mit integrierten LED-Leuchten
- Bodenbeläge: Teppichboden in den Bürobereichen, Fliesen in Neben- und...
Weitere Informationen
Sonstiges
Gerne übersenden wir Ihnen ein ausführliches Exposé mit zahlreichen Fotos und Außenansichten - bitte teilen Sie uns hierzu noch Ihren Namen, Ihre Anschrift und Ihre Festnetz-/Mobilnummer mit - vielen Dank!
Sperr & Zellner Immobilien GmbH
Büro Dorfen:...
Anbieter der Immobilie
Sperr & Zellner Immobilien GmbH
Haager Strasse 16 , 84405 Dorfen
Online-ID: 2nttk5a
Referenznummer: K3797
Finde Angebote wie dieses
Hier geht es zu unserem Impressum, den Allgemeinen Geschäftsbedingungen, den Hinweisen zum Datenschutz und nutzungsbasierter Online-Werbung.