
Immobilien Maria Maier
Frau Maria Maier
085 ···
Nr. anzeigenPreise & Kosten
Provision für Käufer
3,57% des Kaufpreises inkl. 19% MwSt.
Lage
Der kleine und charmante Ort Schmidham, welcher zur Marktgemeinde Ruhstorf a. d. Rott gehört, ist geprägt durch die ländliche Umgebung. Umgeben von Wiesen und Wäldern, welche zum spazieren gehen und vielen andere Sportaktivitäten einladen. Das Haus befindet sich in einer ruhigen Wohngegend - nur ca. 6 km von Bad Griesbach...
Das Haus
Kategorie
Einfamilienhaus
Baujahr
1982
Energie & Heizung
Warum sehe ich diese Anzeige? – Du siehst diese Anzeige basierend auf Ihrer Navigation auf unserer Website und den Suchkriterien, die du verwendet hast.
Energieausweistyp
Bedarfsausweis
Gebäudetyp
Wohngebäude
Baujahr laut Energieausweis
2021
Wesentliche Energieträger
ERDGAS_SCHWER
Gültigkeit
bis 16.12.2035
Effizienzklasse
H
Endenergiebedarf
262,10 kWh/(m²·a)
Weitere Energiedaten
Energieträger
Gas
Heizungsart
Zentralheizung
Details
Objektbeschreibung
Dieses charmante Haus befindet sich in einer ruhigen Wohngegend in dem zu Ruhstorf gehörenden Ortsteil Schmidham. Es bietet zwei getrennte Wohneinheiten und ist perfekt für Familien, die Wert auf Platz und Privatsphäre legen oder auch für die perfekte Kombination aus Wohnen und Arbeiten unter einem Dach.
Die...
Ausstattung
***RAUMAUFTEILUNG ERDGESCHOSS***
- Windfang
- Flur
- Abstellraum
- Bad mit Wanne und WC
- Küche mit Einbauküche
- Wohnzimmer mit Terrassenzugang
- Schlafzimmer
- Terrasse überdacht (Süd-West)
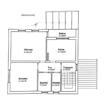
***RAUMAUFTEILUNG OBERGESCHOSS***
- Windfang
- Flur
- Abstellraum
- Bad mit Wanne und...
Preisinformation
2 Garagenstellplätze
Weitere Informationen
Sonstiges
Bitte beachten Sie, dass wir Anfragen nur dann bearbeiten können, wenn Sie uns die vollständigen Kontaktdaten mitteilen (Vorname, Name, Anschrift, E-Mail-Adresse, Telefonnummer). Bitte stellen Sie Ihre Anfragen ausschließlich per Kontaktformular oder per E-Mail.
Die hier eingestellten Angaben sind mit...
Anbieter der Immobilie
Immobilien Maria Maier
Stadtplatz 19, 94086 Bad Griesbach
Online-ID: 2ntt55g
Referenznummer: HK2025-10
Finde Angebote wie dieses
Hier geht es zu unserem Impressum, den Allgemeinen Geschäftsbedingungen, den Hinweisen zum Datenschutz und nutzungsbasierter Online-Werbung.