
E + V Hamburg Immobilien GmbH
Team Engel & Völkers Hamburg Projekte
+49 ···
Nr. anzeigenPreise & Kosten
Warum sehe ich diese Anzeige? – Du siehst diese Anzeige basierend auf Ihrer Navigation auf unserer Website und den Suchkriterien, die du verwendet hast.
Lage
Das Projekt 'The Lyte' liegt in der HafenCity - einem der modernsten und spannendsten Stadtteile Hamburgs. Die HafenCity vereint auf einzigartige Weise moderne Bürogebäude, luxuriöse Wohnprojekte sowie ein vielfältiges Angebot an Einkaufsmöglichkeiten und Gastronomie. Im südlichen Teil des Überseequartiers entsteht ein...
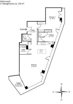
Die Wohnung
Wohnungslage
10. Geschoss
Wohnanlage
Energie & Heizung
Warum sehe ich diese Anzeige? – Du siehst diese Anzeige basierend auf Ihrer Navigation auf unserer Website und den Suchkriterien, die du verwendet hast.
Energieausweistyp
Bedarfsausweis
Gebäudetyp
Wohngebäude
Baujahr laut Energieausweis
2024
Gültigkeit
seit 30.09.2020
Effizienzklasse
B
Endenergiebedarf
66,40 kWh/(m²·a)
Weitere Energiedaten
Energieträger
Fernwärme
Heizungsart
Fußbodenheizung
Details
Objektbeschreibung
Diese 2-Zimmer-Wohnung überzeugt durch modernes Design, hohen Wohnkomfort und eine durchdachte Raumaufteilung. Der großzügige Wohn- und Essbereich mit offener Küche besticht durch bodentiefe Fenster, die viel Tageslicht hereinlassen. Das separate Schlafzimmer bietet einen ruhigen Ort zum Entspannen und ausreichend Platz für...
Ausstattung
Abstellkammer, Einbauküche, Children's playground, unverbaute Sicht, Hafenblick, Wasserblick
Preisinformation
2 Garagenstellplätze, Kaufpreis je: 250,00 EUR
Nettokaltmiete: 3.762,00 EUR
Weitere Informationen
Stichworte
Tiefgarage vorhanden, Gesamtfläche: 120,00 m², Anzahl der Schlafzimmer: 1, Anzahl der Badezimmer: 1, Bundesland: Hamburg, 15 Etagen
Anbieter der Immobilie
E + V Hamburg Immobilien GmbH
Stadthausbrücke 5, 20355 Hamburg
Online-ID: 2ntsb5h
Referenznummer: I-048GPZ-W-048GPZ
Finde Angebote wie dieses
Hier geht es zu unserem Impressum, den Allgemeinen Geschäftsbedingungen, den Hinweisen zum Datenschutz und nutzungsbasierter Online-Werbung.