

ORANGE Immobilienagentur
Frau Lisa Folger
004 ···
Nr. anzeigenPreise & Kosten
Provision für Mieter
Bitte beachte, das Angebot kann bei Vertragsabschluss die Zahlung einer Provision beinhalten. Weitere Informationen erhältst Du vom Anbieter.
Warum sehe ich diese Anzeige? – Du siehst diese Anzeige basierend auf Ihrer Navigation auf unserer Website und den Suchkriterien, die du verwendet hast.
Lage
Wahre Individualität beginnt vor der so nahen Stadt.
Im Umkreis von nur wenigen hundert Metern befinden sich alle Dinge des täglichen Bedarfs, wie Supermärkte, Ärzte und Apotheke, Tankstelle.
Nach nur 800m erreichen Sie die Autobahnauffahrt zur A3, 3 km weiter sind Sie schon am Autobahnkreuz...
Büro-/Praxisfläche
Kategorie
Bürofläche
Baujahr
2024
Bezug
sofort
Energie & Heizung
Warum sehe ich diese Anzeige? – Du siehst diese Anzeige basierend auf Ihrer Navigation auf unserer Website und den Suchkriterien, die du verwendet hast.
Wärme
Energieausweistyp
Bedarfsausweis
Gebäudetyp
Nicht-Wohngebäude
Baujahr laut Energieausweis
2024
Wesentliche Energieträger
PELLET
Gültigkeit
bis 18.11.2031
Endenergiebedarf (Wärme)
41,05 kWh/(m²·a)
Weitere Energiedaten
Energieträger
Pellets
Heizungsart
Fußbodenheizung
Details
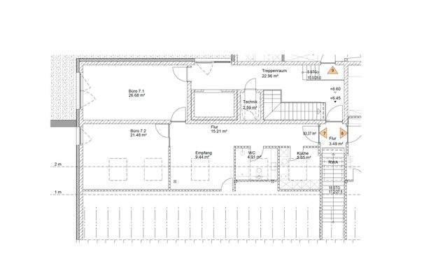
Objektbeschreibung
Willkommen in diesem hochmodernen und geschmackvoll eingerichteten Büro, das sich in einem neu gebauten Gebäude befindet und als ideale Umgebung für eine Praxis oder Kanzlei dient. Diese repräsentative Einheit strahlt Professionalität und Eleganz aus und bietet gleichzeitig eine hochmoderne Ausstattung für ein komfortables...
Ausstattung
* Neubau KfW 40EE Standard
* individuell gestaltbar durch Mieter
* massive Bauweise
* Elektrische Dachfenster mit 3-Scheiben-Wärmeschutzverglasung
* Aluminiumfenster mit 3-Scheiben-Wärmeschutzverglasung
* Fußbodenheizung mit Einzelraumsteuerung
* LED Lichtbänder
* Deckenspots
* Teilweise...
Preisinformation
1 Stellplatz, Miete: 50,00 EUR
Nettokaltmiete: 1.200,00 EUR
Weitere Informationen
Sonstiges
Gerne sind wir für weitere Fragen und Informationen unter Tel.: 0941- 698 498 80 erreichbar.
Alle Angaben stammen vom Eigentümer der Makler übernimmt hierfür keine Haftung.
Anfragen über die Immobilienportale werden nur mit vollständiger Adresse und Telefonnummer bearbeitet. Jeder ORANGE...
Anbieter der Immobilie
ORANGE Immobilienagentur
Kumpfmühler Str. 59, 93051 Regensburg

Online-ID: 2ntqr5y
Referenznummer: 155-VGE-BK.7
Finde Angebote wie dieses
Hier geht es zu unserem Impressum, den Allgemeinen Geschäftsbedingungen, den Hinweisen zum Datenschutz und nutzungsbasierter Online-Werbung.