
McMakler GmbH
Ihr McMakler Team
080 ···
Nr. anzeigenPreise & Kosten
Provision für Käufer
Die Provision i.H.v. 3,57 % inkl. MwSt. ist mit Kaufvertragsbeurkundung fällig, sofern der Verkaufspreis über 83.000,00 € liegt.
Liegt der Verkaufspreis dagegen bei/unter 83. Weitere Informationen siehe Provisionshinweis.
Lage
Lage: Attraktive Lage in Schwedt/Oder-Zützen mit besten Voraussetzungen für Selbstnutzer und Anleger
Bildung und Betreuung: Mehreren Kindergärten und einigen Schulen in ca. 6 km bis ca. 9 km Entfernung
Nahversorgung: Anlaufstellen wie Supermarkt, Apotheke, Postfiliale und Bankfiliale in einem Radius von max. 6...
Das Haus
Kategorie
Mehrfamilienhaus
Baujahr
1997
Bezug
nach Absprache
Energie & Heizung
Warum sehe ich diese Anzeige? – Du siehst diese Anzeige basierend auf Ihrer Navigation auf unserer Website und den Suchkriterien, die du verwendet hast.
Energieausweistyp
Verbrauchsausweis
Gebäudetyp
Wohngebäude
Baujahr laut Energieausweis
1997
Wesentliche Energieträger
Öl,Solar
Effizienzklasse
B
Endenergieverbrauch
68,30 kWh/(m²·a)
Weitere Energiedaten
Energieträger
Öl, Solar
Heizungsart
Zentralheizung
Details
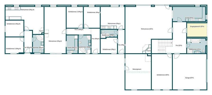
Objektbeschreibung
Objektnr: 1069819
Als ideale Option für Eigennutzung und Investment präsentiert sich dieses Objekt in Schwedt/Oder, beschaulich und sicher in einer Nebenstraße. Während 2 Einheiten bereits vermietet sind, stehen Ihnen 2 bezugsfrei zur Verfügung. Indem Sie das vorhandene Mietsteigerungspotenzial optimal nutzen...
Ausstattung
+ Einfamilienhaus & 3 Wohnungen in Schwedt/Oder für Eigennutzung und Vermietung
+ 2 Wohnungen vermietet zu ca. 15.240 € p.a. - denkbare Vermietung ohne Leerstand zu ca. 20.094 € p.a.
+ Die Immobilie präsentiert sich in einem gepflegten Zustand
+ Ausstattungsdetails umfassen u. a. eine Einbauküche, 3 Kamine und...
Preisinformation
Ist-Mieteinnahmen pro Jahr: 15.240,00 EUR
Weitere Informationen
Provisionshinweis
Die Provision i.H.v. 3,57 % inkl. MwSt. ist mit Kaufvertragsbeurkundung fällig, sofern der Verkaufspreis über 83.000,00 € liegt.
Liegt der Verkaufspreis dagegen bei/unter 83.000,00 €, ist die fest vereinbarte Mindestprovision i.H.v. mind. 5.950,00 € inkl. MwSt. mit Kaufvertragsbeurkundung fällig...
Anbieter der Immobilie
McMakler GmbH
Am Postbahnhof 17, 10243 Berlin
Online-ID: 2ntqk5x
Referenznummer: 169155a866
Finde Angebote wie dieses
Hier geht es zu unserem Impressum, den Allgemeinen Geschäftsbedingungen, den Hinweisen zum Datenschutz und nutzungsbasierter Online-Werbung.