

Urban Estates
Herr Julien Wergin
015 ···
Nr. anzeigenPreise & Kosten
Provision für Käufer
3,57 % inkl. gesetzlicher MwSt. bezogen auf den Kaufpreis
Lage
Das zum Verkauf stehende Grundstück befindet sich im idyllischen Ortsteil Seebeck der Gemeinde Vielitzsee, eingebettet in die malerische Landschaft Brandenburgs. Die Umgebung ist geprägt von einer typisch märkischen, bäuerlichen Landschaft mit weitläufigen Wäldern und zahlreichen Seen, die zur Ruhe, Erholung und inneren...
Das Haus
Kategorie
Bauernhaus
Baujahr
1936
Bezug
Nach Vereinbarung
Energie & Heizung
Warum sehe ich diese Anzeige? – Du siehst diese Anzeige basierend auf Ihrer Navigation auf unserer Website und den Suchkriterien, die du verwendet hast.
Energieausweistyp
Verbrauchsausweis
Gebäudetyp
Wohngebäude
Wesentliche Energieträger
GAS
Gültigkeit
bis 19.02.2035
Effizienzklasse
C
Endenergieverbrauch
91,24 kWh/(m²·a)
Weitere Energiedaten
Energieträger
Gas
Heizungsart
offener Kamin, Zentralheizung
Details
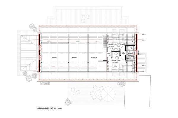
Objektbeschreibung
Kurzbeschreibung
Diese einzigartige Immobilie vereint den rustikalen Charme einer historischen Scheune mit modernem Wohnkomfort. Ursprünglich im Jahr 1936 erbaut, wurde das Gebäude 2019 mit viel Liebe zum Detail und hochwertigen Materialien zu einem besonderen Einfamilienhaus umgestaltet. Dabei blieb der ursprüngliche...
Ausstattung
. Perfekte Ferienimmobilie
. 4 Zimmer zzgl. Ausbaureserve in der Galerie
. Masterschlafzimmer mit Ankleideraum
. 2 tagesbelichtete Bäder, davon ein Duschbad und ein Wannenbad
. Offene Galerieebene
. Hauptwohnraum (ca. 133qm) Wohn-/Ess-/Küchenbereich
. Italienischer Marmor in der Küche
. Originale...
Preisinformation
4 Carportplätze
Soll-Mieteinnahmen pro Jahr: 34.440,00 EUR
Ist-Mieteinnahmen pro Jahr: 27.240,00 EUR
Weitere Informationen
Sonstiges
Man spürt die Liebe zum Detail wie diese historische Scheune erhalten wurde.
Stichworte
Carport vorhanden, vermietbare Fläche: 245,41 m², Anzahl der Schlafzimmer: 2, Anzahl der Badezimmer: 2, Anzahl der Wohneinheiten: 1, 2 Etagen, modernisiert: Ausbau der Scheune 2019
Anbieter der Immobilie
Urban Estates
Kurfürstendamm 14, 10719 Charlottenburg-Wilmersdorf

Online-ID: 2ntpv5l
Referenznummer: UE-BER1790
Finde Angebote wie dieses
Hier geht es zu unserem Impressum, den Allgemeinen Geschäftsbedingungen, den Hinweisen zum Datenschutz und nutzungsbasierter Online-Werbung.