
Evernest GmbH
Björn Wehmeier
+49 ···
Nr. anzeigenPreise & Kosten
Provision für Käufer
3.57 inkl. MwSt.
Bei Abschluss eines notariellen Kaufvertrages ist eine Käuferprovision vom Käufer in Höhe von 3.57 % inkl. MwSt. aus dem Kaufpreis fällig.
Lage
Die Immobilie befindet sich im Ortsteil Lette der Stadt Oelde im Kreis Warendorf, eingebettet in die reizvolle Landschaft des Münsterlandes. Der Ortsteil zählt rund 2.400 Einwohner und verbindet dörflichen Charakter mit einer guten infrastrukturellen Anbindung. ?
Lette bietet eine angenehme Mischung aus ruhigem Wohnen...
Das Haus
Kategorie
Einfamilienhaus
Baujahr
1935
Energie & Heizung
Warum sehe ich diese Anzeige? – Du siehst diese Anzeige basierend auf Ihrer Navigation auf unserer Website und den Suchkriterien, die du verwendet hast.
Energieausweistyp
Bedarfsausweis
Gebäudetyp
Wohngebäude
Effizienzklasse
H
Endenergiebedarf
289,40 kWh/(m²·a)
Weitere Energiedaten
Energieträger
Gas
Details
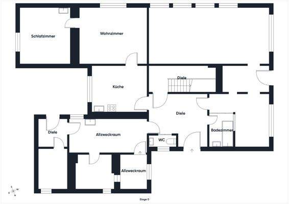
Objektbeschreibung
Dieses sanierungsbedürftige Wohnhaus bietet eine interessante Kombination aus vorhandener Wohnfläche, solider Grundstruktur und zusätzlichem Entwicklungspotenzial. Die Immobilie verfügt aktuell über zwei separate Wohneinheiten mit einer ausgewiesenen Wohnfläche von insgesamt ca. 145 m².
Die beiden Wohneinheiten sind...
Ausstattung
- Großes Grundstück
- 2 Garagen
- Mehrgenerationenwohnen möglich
- 2 getrennte Wohneinheiten
- Balkon
- 4-5 Außenstellplätze
- Glasfaser bis zur Bordsteinkante
- Zugang der Wohnung im 1 OG. zum Garten
- ca. 145m² ausgewiesene Wohnfläche
- zusätzlich ca. 80-90m² Entwicklungspotenzial
- ehemalige...
Weitere Informationen
Stichworte
Parkhaus vorhanden, Anzahl der Schlafzimmer: 3, Anzahl der Badezimmer: 2, Anzahl der separaten WCs: 1, Anzahl Balkone: 1, Anzahl Terrassen: 1, Balkon-Terrassen-Fläche: 10,00 m²
Anbieter der Immobilie
Online-ID: 2ntp55v
Referenznummer: L-G34WDMH
Finde Angebote wie dieses
Hier geht es zu unserem Impressum, den Allgemeinen Geschäftsbedingungen, den Hinweisen zum Datenschutz und nutzungsbasierter Online-Werbung.