

Kern-Haus AG Niederlassung Dresden
Frau Nicole Ulbricht
035 ···
Nr. anzeigenPreise & Kosten
Provision für Käufer
provisionsfrei
Lage
Zum Verkauf steht ein attraktives Baugrundstück mit einer großzügigen Fläche von 967 m² in ruhiger und gewachsener Wohnlage von Graupa, einem beliebten Ortsteil der Pirna. Das Grundstück befindet sich in einer sehr ruhigen Seitenstraße innerhalb eines bestehenden Wohngebiets und bietet damit ideale Voraussetzungen für...
Das Haus
Kategorie
Mehrfamilienhaus
Baujahr
2026
Energie & Heizung
Warum sehe ich diese Anzeige? – Du siehst diese Anzeige basierend auf Ihrer Navigation auf unserer Website und den Suchkriterien, die du verwendet hast.
Energieausweistyp
Bedarfsausweis
Gebäudetyp
Wohngebäude
Effizienzklasse
A+
Endenergiebedarf
16,69 kWh/(m²·a)
Weitere Energiedaten
Energieträger
Elektro
Heizungsart
Fußbodenheizung, Zentralheizung
Details
Objektbeschreibung
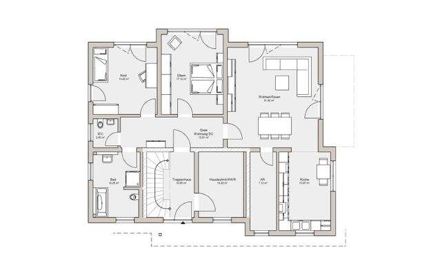
Mit 217 m² bietet das Mehrfamilienhaus Extend genug Platz für zwei Familien in separaten Wohneinheiten. Die Erdgeschosswohnung umfasst 108 m² und erwartet seine Bewohner mit einem Elternschlafzimmer, einem Kinderzimmer, einem Gäste-WC und dem Familienbad. Der große Wohn- und Essbereich mit angeschlossener Küche verfügt über...
Ausstattung
WE EG: 3 Zimmer, offene Küche, Diele, Bad, WC, Abstellkammer
WE DG: 4 Zimmer, offene Küche, Diele, Bad, WC, Abstellkammer, Balkon
Das gezeigte Traumhaus im Überblick:
+ Schlüsselfertiges Massivhaus im Sinne der Ausstattungsbeschreibung "Edition 25"
+ Zukunftsorientierte Energieausstattung in Form einer...
Weitere Informationen
Sonstiges
Kern-Haus
Kern-Haus baut individuelle und massive Architektenhäuser zu einem attraktiven Preis-Leistungs-Verhältnis - und das bereits mit einer Erfahrung seit 1980. Bei Kern-Haus erhalten Sie unter anderem 10 Jahre Gewährleistung auf die wesentlichen Bauleistungen, bis zu 24 Monate Preissicherheit sowie...
Anbieter der Immobilie
Kern-Haus AG Niederlassung Dresden
Am Sandberg 2, 01468 Moritzburg

Online-ID: 2ntn75w
Referenznummer: WDD 10476
Finde Angebote wie dieses
Hier geht es zu unserem Impressum, den Allgemeinen Geschäftsbedingungen, den Hinweisen zum Datenschutz und nutzungsbasierter Online-Werbung.