
Agas Immobilien GmbH
Herr Sebastian Fiedler
004 ···
Nr. anzeigenPreise & Kosten
Kaution
1.197,00
Provision für Mieter
provisionsfrei
Warum sehe ich diese Anzeige? – Du siehst diese Anzeige basierend auf Ihrer Navigation auf unserer Website und den Suchkriterien, die du verwendet hast.
Lage
Die Carl-von-Ossietzky-Straße 21 befindet sich in attraktiver und gewachsener Wohnlage von Eberswalde, einer charmanten Stadt nordöstlich von Berlin, die urbanes Leben mit naturnaher Umgebung verbindet. Das Umfeld ist geprägt von gepflegten Wohnhäusern, viel Grün und einer angenehmen, ruhigen Atmosphäre.
Das...
Büro-/Praxisfläche
Kategorie
Praxisfläche
Baujahr
1892
Bezug
sofort
Geschoss
Erdgeschoss
Energie & Heizung
Warum sehe ich diese Anzeige? – Du siehst diese Anzeige basierend auf Ihrer Navigation auf unserer Website und den Suchkriterien, die du verwendet hast.
Wärme
Energieausweistyp
Verbrauchsausweis
Gebäudetyp
Nicht-Wohngebäude
Baujahr laut Energieausweis
1892
Wesentliche Energieträger
ERDGAS_LEICHT
Gültigkeit
bis 19.07.2028
Endenergieverbrauch (Wärme)
117,00 kWh/(m²·a)
Weitere Energiedaten
Energieträger
Gas
Details
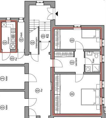
Objektbeschreibung
Zur Vermietung steht eine ca. 62 m² große Gewerbefläche, die sich im Souterrain eines gepflegten Wohnhauses befindet. Die Einheit umfasst drei separate Zimmer, die flexibel genutzt und individuell eingerichtet werden können. Dank der vorhandenen Fenster in allen Räumen ist ausreichend Tageslicht gegeben, was für eine...
Ausstattung
- ca. 62 m² Gewerbefläche
- drei separate Zimmer
- Fenster in allen Räumen mit Tageslicht
- zwei Zimmer mit Fliesenboden
- flexible Nutzungsmöglichkeiten
- optional anmietbare Garagen oder Stellplätze
Weitere Informationen
Sonstiges
Wir haben Ihr Interesse geweckt?
Hier auf dieser Seite finden Sie jetzt die Möglichkeit der Kontaktaufnahme. Für weitere Informationen (Termine, Anschrift u.ä.) benötigen wir Ihre Angaben: Name, Vorname, Anschrift, E-Mail, Telefonnummer (fest/mobil).
Unvollständige Anfragen können wir nicht...
Anbieter der Immobilie
Online-ID: 2ntkl5e
Referenznummer: QL650_1
Finde Angebote wie dieses
Hier geht es zu unserem Impressum, den Allgemeinen Geschäftsbedingungen, den Hinweisen zum Datenschutz und nutzungsbasierter Online-Werbung.