
S Pro Immobilien GmbH
Herr Michael Müller
068 ···
Nr. anzeigenPreise & Kosten
Provision für Käufer
3,57 % inkl. MwSt.
Die Mindestprovision beträgt 3.570 € inkl. MwSt.
Maßgeblich sind die im jeweiligen Vertrag getroffenen Regelungen.
Lage
Die Immobilie befindet sich in einer sehr ruhigen und bevorzugten Wohnlage von Völklingen im beliebten Ortsteil Heidstock.
Einkaufsmöglichkeiten, Schulen, Kindergärten und medizinische Einrichtungen sind schnell erreichbar. Die Anbindung an den öffentlichen Nahverkehr sowie die Autobahn A620 ermöglicht eine zügige...
Das Haus
Kategorie
Bungalow
Baujahr
1975
Energie & Heizung
Warum sehe ich diese Anzeige? – Du siehst diese Anzeige basierend auf Ihrer Navigation auf unserer Website und den Suchkriterien, die du verwendet hast.
Energieausweistyp
Bedarfsausweis
Gebäudetyp
Wohngebäude
Baujahr laut Energieausweis
1975
Wesentliche Energieträger
Öl
Gültigkeit
04.02.2026 bis 03.02.2036
Effizienzklasse
G
Endenergiebedarf
209,50 kWh/(m²·a)
Weitere Energiedaten
Haustyp
Fertighaus
Energieträger
Öl
Heizungsart
Zentralheizung
Details
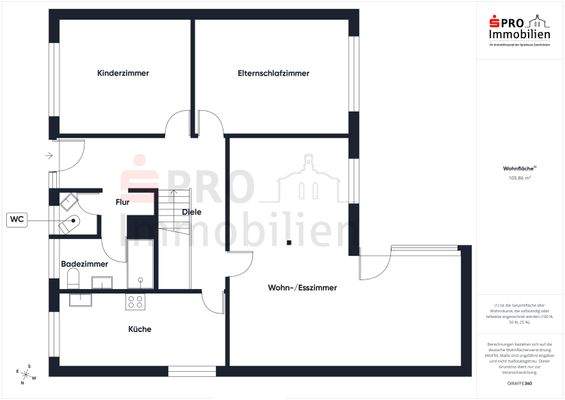
Objektbeschreibung
Ein Bungalow mit solider Bausubstanz, der komfortables Wohnen auf einer Ebene ermöglicht.
Der Eingangsbereich empfängt Sie mit einem Flur und eine kleinen Garderobe. Direkt angrenzend befinden sich ein separates WC sowie ein Badezimmer. Auf der linken Seite des Hauses liegen ein Kinderzimmer und das Elternschlafzimmer...
Ausstattung
Individuelle Ausstattungsmerkmale:
- Garage
Die Immobilie bietet eine gute Grundlage für individuelle Gestaltungsideen, da Renovierungsarbeiten erforderlich sind.
Weitere Informationen
Sonstiges
Der Garten ist derzeit verwildert und wartet darauf, mit einer pflegenden Hand wieder in eine grüne Oase verwandelt zu werden - ideal für Gartenliebhaber und kreative Gestalter.
Eine Garage befindet sich außerhalb des Grundstücks und gehört zur Immobilie.
Verbraucherinformationen -...
Anbieter der Immobilie
Online-ID: 2ntht5e
Referenznummer: 12636
Finde Angebote wie dieses
Hier geht es zu unserem Impressum, den Allgemeinen Geschäftsbedingungen, den Hinweisen zum Datenschutz und nutzungsbasierter Online-Werbung.