
ohne-makler.net - Immobilien selbst vermarkten
Privat von Karen Nehlsen
Kontaktiere den Anbieter schriftlich, es ist keine Telefonnummer hinterlegt.
Preise & Kosten
Provision für Käufer
provisionsfrei
Abschreibung/Anlage
Denkmalschutz-Afa
Lage
Das Haus steht in dem Dorf Stadum, gelegen an der B199 zwischen Schafflund und Leck (jeweils 8 km entfernt), zwei ländlichen Unterzentren mit Einkaufsmöglichkeiten, Ärzten, Schulen, Handwerks- und Dienstleistungsbetrieben.
Die nächste Einkaufsmöglichkeit befindet sich in 350m Entfernung direkt im Dorf sowie in ca...
Das Haus
Kategorie
Bauernhaus
Baujahr
1785
Bezug
nach Absprache
Derzeitige Nutzung
vermietet
Energie & Heizung
Warum sehe ich diese Anzeige? – Du siehst diese Anzeige basierend auf Ihrer Navigation auf unserer Website und den Suchkriterien, die du verwendet hast.
Weitere Energiedaten
Energieträger
Elektro
Heizungsart
offener Kamin
Details
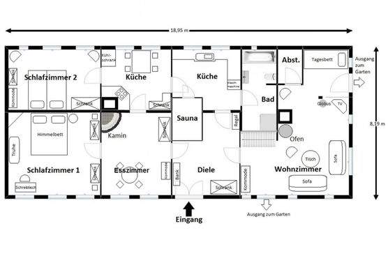
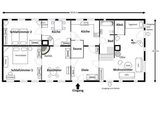
Objektbeschreibung
360°-Rundgang: https://www.ohne-makler.net/panorama/435773/
Zum Verkauf steht ein "Traum unter Reet":
Mitten im Dorf und trotzdem abgeschieden - ein liebevoll eingerichtetes Reetdachhaus in einem verträumten Garten mit Blumen, alten Apfelbäumen und großem sattgrünem Rasen.
Friesisches Utlandehaus von 1785,...
Ausstattung
Terrasse, Garten, Sauna, Einbauküche, Kamin, Laminat, Fliesen, Sonstiges (s. Text)
Bemerkungen:
Ausstattung: Das Haus wird verkauft komplett mit Inventar.
Es ist voll ausgestattet, voll möbliert einschließlich Gartenmöbeln, Gartengeräten und Mähroboter. Es ist zur Zeit laufend vermietet als Ferienhaus, auch...
Preisinformation
2 Stellplätze
Weitere Informationen
Sonstiges
Heizungsart: Sonstiges (s. Text)
Energieträger: Strom
Energieausweis nicht vorhanden
Energieausweis nicht erforderlich/nicht möglich, weil historisch
Makleranfragen nicht erwünscht. Nach § 7 UWG sind unaufgeforderte Kontaktaufnahmen durch Makler ohne ausdrückliche Einwilligung des Empfängers...
Anbieter der Immobilie
ohne-makler.net - Immobilien selbst vermarkten
Humboldtstr. 25 A, 21509 Glinde
Privat von Karen Nehlsen
Dein Ansprechpartner
Kontaktiere den Anbieter schriftlich, es ist keine Telefonnummer hinterlegt.
Online-ID: 2nte75u
Referenznummer: 435773
Finde Angebote wie dieses
Hier geht es zu unserem Impressum, den Allgemeinen Geschäftsbedingungen, den Hinweisen zum Datenschutz und nutzungsbasierter Online-Werbung.