
Schwabenhaus Leipzig - Simone Krüger - Handelsvertretung für die Schwabenhaus GmbH
Simone Krüger
+49 ···
Nr. anzeigenPreise & Kosten
Provision für Käufer
provisionsfrei
Lage
Kohren-Sahlis ist eine malerische Kleinstadt im Landkreis Leipzig im Bundesland Sachsen, Deutschland. Die Stadt ist bekannt für ihre reiche Geschichte und ihr kulturelles Erbe, das bis ins Mittelalter zurückreicht. Gelegen in einer leicht hügeligen Landschaft, ist Kohren-Sahlis von fruchtbaren Feldern, Wäldern und kleinen...
Das Haus
Kategorie
Einfamilienhaus
Energie & Heizung
Warum sehe ich diese Anzeige? – Du siehst diese Anzeige basierend auf Ihrer Navigation auf unserer Website und den Suchkriterien, die du verwendet hast.
Weitere Energiedaten
Heizungsart
Fußbodenheizung
Details
Objektbeschreibung
YOUR FAMILY'S FOREVER HOME.
Ein Zuhause ist nicht nur ein Ort - es ist ein Gefühl.
Es bedeutet Freiheit, Sicherheit und eine Zukunft, die du selbst gestalten kannst.
Mit White&Black bekommst du mehr als ein Haus - du bekommst einen Lebensraum, der mit dir wächst.
Stell dir vor:
Ein...
Ausstattung
THINK WHITE - Do it yourself.
- Fertige Gebäudehülle - du entscheidest über den Innenausbau
- Maximale Individualität - für kreative Köpfe & Macher
- Ideal für Eigenleistung - handwerkliches Geschick spart bares Geld
- Optimierte Grundrisse - smarte Wohnkonzepte für flexible Gestaltung
-...
Weitere Informationen
Sonstiges
Vereinbare einen persönlichen Beratungstermin, um über Deinen Haustraum und das angebotene Objekt zu sprechen.
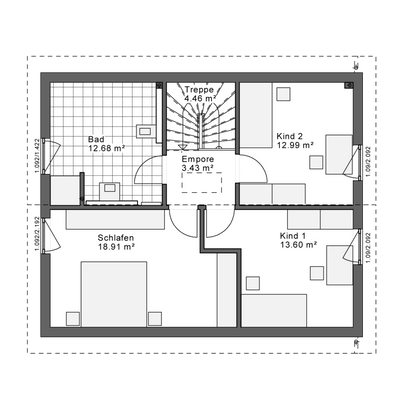
Bitte beachte, dass die dargestellten Bilder und Grundrisse nur beispielhaft sind und unter Umständen Sonderbauteile enthalten, die nicht im angegebenen Preis enthalten sind.
Hab außerdem bitte...
Anbieter der Immobilie
Schwabenhaus Leipzig - Simone Krüger - Handelsvertretung für die Schwabenhaus GmbH
Siedlung der Einheit 1b, 04838 Zschepplin
Online-ID: 2ntdg54
Referenznummer: WB-25539-Frohburg
Finde Angebote wie dieses
Hier geht es zu unserem Impressum, den Allgemeinen Geschäftsbedingungen, den Hinweisen zum Datenschutz und nutzungsbasierter Online-Werbung.