

WIS GmbH Wirtschafts- und Immobilienservice
Herr Peter Georgi
037 ···
Nr. anzeigenPreise & Kosten
Provision für Käufer
3 % zzgl. MWSt.
Abschreibung/Anlage
als Kapitalanlage geeignet
Lage
Weißenborn/Erzgebirge (PLZ 09600) ist eine idyllische Gemeinde im Landkreis Mittelsachsen in Sachsen und liegt am nördlichen Rand des Osterzgebirges – nur etwa 6 km von der traditionsreichen Universitäts- und Bergstadt Freiberg entfernt.
Die rund 2.400 Einwohner zählende Gemeinde vereint ländliche Ruhe mit einer guten...
Die Wohnung
Wohnungslage
Erdgeschoss
Bezug
sofort
Derzeitige Nutzung
frei
Wohnanlage
Energie & Heizung
Warum sehe ich diese Anzeige? – Du siehst diese Anzeige basierend auf Ihrer Navigation auf unserer Website und den Suchkriterien, die du verwendet hast.
Energieausweistyp
Verbrauchsausweis
Gebäudetyp
Wohngebäude
Baujahr laut Energieausweis
1972
Wesentliche Energieträger
Erdgas
Gültigkeit
31.03.2025 bis 30.03.2035
Effizienzklasse
C
Endenergieverbrauch
95,00 kWh/(m²·a)
Weitere Energiedaten
Energieträger
Gas
Heizungsart
Zentralheizung
Details
Objektbeschreibung
In angenehmer Wohnlage von Weißenborn/Erzgebirge präsentiert sich diese gepflegte Eigentumswohnung in einer ruhigen und grünen Wohnanlage. Das Mehrfamilienhaus im Forstweg 10–14 überzeugt durch seine solide Bauweise, eine freundliche Fassadengestaltung sowie eine harmonische Einbindung in die umliegende Natur.
Die...
Ausstattung
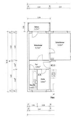
Die Wohnung befindet sich im Erdgeschoss und ist mit einem Badezimmer inklusive Badewanne , einer Küche sowie einem Wohnzimmer und einem Schlafzimmer ausgestattet. Alle Fenster sind mit Rollläden ausgestattet. Angrenzend an das Wohnzimmer befindet sich ein großer Balkon in Richtung Süden.
Das Gemeinschaftseigentum ist...
Weitere Informationen
Sonstiges
Info: Anzahl Etagen: 3
Besichtigungstermine können mit unserem Büro
Berthelsdorfer Straße 53 in 09599 Freiberg,
per Telefon 03731 26190 oder per
E-Mail: info@wis-freiberg.de
vereinbart werden.
Heizungsart:
Heizkoerper
Anbieter der Immobilie
WIS GmbH Wirtschafts- und Immobilienservice
Berthelsdorfer Str. 53, 09599 Freiberg

Online-ID: 2ntd55y
Referenznummer: G022/17
Finde Angebote wie dieses
Hier geht es zu unserem Impressum, den Allgemeinen Geschäftsbedingungen, den Hinweisen zum Datenschutz und nutzungsbasierter Online-Werbung.