
Newland Immobilien GmbH
Herr Gerd Springer
004 ···
Nr. anzeigenPreise & Kosten
Provision für Käufer
pauschal 3.800€ Kauferprovision.
Zahlbar mit Abschluss eines notariellen Kaufvertrages. Wir haben einen provisionspflichtigen Maklervertrag mit dem Verkäufer in gleicher Höhe abgeschlossen.
Lage
Die Immobilie steht in Leuna. Leuna liegt westlich von Leipzig und südlich von Halle an der Saale. Die Stadt bietet eine sehr gute Infrastruktur bestehend aus zahlreichen Lebensmittelmärkten, Ärzten, Restaurants, Kitas und Schulen. Es besteht eine schnelle Anbindung zur A38. Durch die direkte Bahnanbindung können umliegende...
Das Haus
Kategorie
Doppelhaushälfte
Details
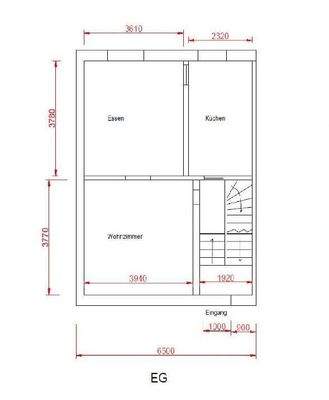
Objektbeschreibung
Pärchen und Singles aufgepasst! Diese charmante Doppelhaushälfte kann zu Ihren eigenen vier Wänden werden! Dann heißt es Miete Ade. Die pflegeleichte Wohnfläche von ca. 83m², kann mit einer Ausbaureserve von ca. 27m² Nutzfläche im Dachgeschoss, noch individuell erweitert werden. Der Vollkeller, der zusätzlichen Stauraum...
Weitere Informationen
Sonstiges
ENERGIEAUSWEIS
Es ist noch kein Energieausweis vorhanden. Er befindet sich in Bearbeitung.
HINWEIS
Zu weiteren Angaben (Objektadresse, Grundrisse, Wohnflächenangaben etc.) bitten wir Sie um eine Anfrage über dieses Portal mit Ihren vollständigen Adressdaten. Ihren Nachrichtentexte über diese Anfrage...
Anbieter der Immobilie

Newland Immobilien GmbH
Online-ID: 2ntbq57
Referenznummer: 567
Finde Angebote wie dieses
Hier geht es zu unserem Impressum, den Allgemeinen Geschäftsbedingungen, den Hinweisen zum Datenschutz und nutzungsbasierter Online-Werbung.