
Stenner Immobilien KG Hamburg
Florian Niemann
017 ···
Nr. anzeigenPreise & Kosten
Provision für Käufer
3,27 % inkl. MwSt. des notariell beurkundeten Kaufpreises
Die Maklercourtage in Höhe von 3,27 % inkl. geltender MwSt. Weitere Informationen siehe Provisionshinweis.
Lage
Entdecken Sie Ihr neues Zuhause im beliebten Viertel Barmbek-Süd, einem der angesagtesten Stadtteile Hamburgs. In nur wenigen Gehminuten sind pulsierende Einkaufsstraßen, charmante Cafés und beliebte Restaurants erreichbar.
Barmbek-Süd besticht durch seine urbane Atmosphäre und gleichzeitige Wohnlichkeit. Hier...
Die Wohnung
Wohnungslage
Erdgeschoss
Derzeitige Nutzung
vermietet
Wohnanlage
Energie & Heizung
Warum sehe ich diese Anzeige? – Du siehst diese Anzeige basierend auf Ihrer Navigation auf unserer Website und den Suchkriterien, die du verwendet hast.
Energieausweistyp
Verbrauchsausweis
Gebäudetyp
Wohngebäude
Wesentliche Energieträger
Erdgas leicht
Effizienzklasse
D
Weitere Energiedaten
Heizungsart
Zentralheizung
Details
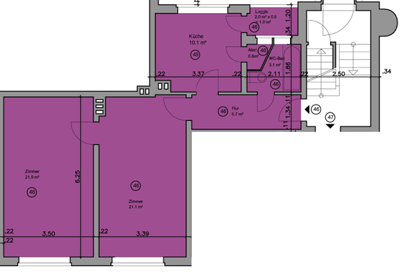
Objektbeschreibung
Diese charmante 2-Zimmer-Wohnung im Hochparterre bietet eine hervorragende Gelegenheit für Kapitalanleger oder Eigennutzer. Mit einer Wohnfläche von 66 m² und einem großzügigen Grundstück von 7.030 Quadratmetern präsentiert sich diese Immobilie in einem gepflegten Wohnkomplex mit insgesamt 5 Etagen.
Die letzte...
Weitere Informationen
Provisionshinweis
3,27 % inkl. MwSt. des notariell beurkundeten Kaufpreises
Die Maklercourtage in Höhe von 3,27 % inkl. geltender MwSt. auf den Kaufpreis ist mit dem Zustandekommen des Kaufvertrages (notarieller Kaufvertragsabschluss) verdient und fällig und vom Käufer an die Stenner Immobilien KG Hamburg ( AG & Co...
Anbieter der Immobilie
Stenner Immobilien KG Hamburg
Elbberg 6 A, 22767 Hamburg
Online-ID: 2nta65f
Referenznummer: WS111D
Finde Angebote wie dieses
Hier geht es zu unserem Impressum, den Allgemeinen Geschäftsbedingungen, den Hinweisen zum Datenschutz und nutzungsbasierter Online-Werbung.