
HATESUR IMMOBILIEN & Verwaltungsgesellschaft mbH
Herr Rüdiger Hatesur
0 5 ···
Nr. anzeigenPreise & Kosten
Kaution
2 Nettomieten
Warum sehe ich diese Anzeige? – Du siehst diese Anzeige basierend auf Ihrer Navigation auf unserer Website und den Suchkriterien, die du verwendet hast.
Lage
iese Immobilie befindet sich in ruhiger und naturnaher Wohnlage in einer beliebten Gemeinde im Landkreis Nienburg/Weser in Niedersachsen. Die Umgebung ist geprägt von weitläufigen Grünflächen, Wäldern und einer aufgelockerten Wohnbebauung, die ein angenehmes und familienfreundliches Wohnumfeld schafft.
Die Gemeinde...
Die Wohnung
Bezug
Sofort möglich
Wohnanlage
Details
Objektbeschreibung
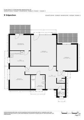
Diese großzügig geschnittene 4-Zimmer-Erdgeschosswohnung mit einer Wohnfläche von ca. 120 m² bietet ein komfortables und ansprechendes Wohnambiente. Die Wohnung überzeugt durch ihren durchdachten Grundriss und helle, freundliche Räume, die vielfältige Nutzungsmöglichkeiten erlauben. Das Tageslichtbad ist mit einer Dusche...
Ausstattung
Einbauküche, Gäste WC, Keller, Terasse, Wannenbad, Garage
Preisinformation
1 Garagenstellplatz, Miete: 35,00 EUR
Nettokaltmiete: 800,00 EUR
Weitere Informationen
Stichworte
Garage vorhanden, Anzahl der Schlafzimmer: 3, Anzahl der Badezimmer: 2, Anzahl Balkone: 1, Anzahl der Wohn-Schlafzimmer: 4
Anbieter der Immobilie
HATESUR IMMOBILIEN & Verwaltungsgesellschaft mbH
Leinstraße 36, 31582 Nienburg (Weser)
Online-ID: 2nt9j5j
Referenznummer: HIG 496
Finde Angebote wie dieses
Hier geht es zu unserem Impressum, den Allgemeinen Geschäftsbedingungen, den Hinweisen zum Datenschutz und nutzungsbasierter Online-Werbung.