
VON POLL IMMOBILIEN Hochtaunus - Carola Öhl
Firma VON POLL IMMOBILIEN Shop Hochtaunus
+49 ···
Nr. anzeigenPreise & Kosten
Provision für Käufer
Käuferprovision beträgt 3,57 % (inkl. MwSt.) des beurkundeten Kaufpreises
Lage
Usingen befindet sich inmitten der wunderschönen Natur des Hochtaunus. Die Region wird zu allen Jahreszeiten insbesondere von den Frankfurter Bürgern auf der Suche nach Erholung und Ruhe frequentiert. SIE hingegen haben die Möglichkeit, hier zu leben.
Usingen besteht aus den Stadtteilen Usingen (Zentrum), Eschbach...
Das Haus
Kategorie
Mehrfamilienhaus
Baujahr
1951
Energie & Heizung
Warum sehe ich diese Anzeige? – Du siehst diese Anzeige basierend auf Ihrer Navigation auf unserer Website und den Suchkriterien, die du verwendet hast.
Energieausweistyp
Bedarfsausweis
Gebäudetyp
Wohngebäude
Baujahr laut Energieausweis
1953
Wesentliche Energieträger
OEL
Gültigkeit
bis 13.02.2036
Effizienzklasse
G
Endenergiebedarf
214,90 kWh/(m²·a)
Weitere Energiedaten
Haustyp
Massivhaus
Energieträger
Öl
Heizungsart
Zentralheizung
Details
Objektbeschreibung
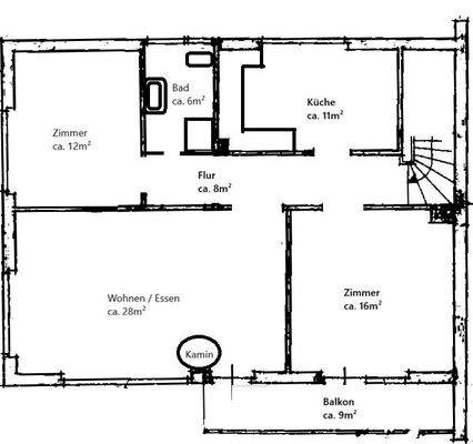
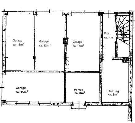
In beliebter Wohnlage von Usingen befindet sich diese Liegenschaft mit insgesamt 6 Parteien, aufgeteilt in ein Vorderhaus und ein Hinterhaus. Das Vorderhaus aus dem ursprünglichen Baujahr 1951 wurde 1954 im Dachgeschoss ausgebaut und in den Jahren 1957 und 1966 jeweils um einen Anbau erweitert. Anfang 2000 erhielt das Gebäude...
Ausstattung
VORDERHAUS.
- 5 Parteienhaus aus Baujahr 1951
- 3x 1 Zimmer Wohnungen, eine davon neu saniert im EG
- 2x 4 Zimmer Wohnungen im OG und DG
- 5 unterschiedlich große Kellerräume für die Wohnungen
- 1 Mülltonnenraum
- 1 Doppelgarage für 2 PKW hintereinander
- 2 Stellplätze vor dem Haus
- Dach aus 2001 mit...
Preisinformation
2 Stellplätze
4 Garagenstellplätze
Weitere Informationen
Sonstiges
GELDWÄSCHE: Als Immobilienmaklerunternehmen ist die von Poll Immobilien GmbH nach § 2 Abs. 1 Nr. 14 und § 11 Abs. 1, 2 Geldwäschegesetz (GwG) dazu verpflichtet, bei der Begründung einer Geschäftsbeziehung die Identität des Vertragspartners festzustellen und zu überprüfen, bzw. sobald ein ernsthaftes Interesse an...
Anbieter der Immobilie
VON POLL IMMOBILIEN Hochtaunus - Carola Öhl
Kreuzgasse 22, 61250 Usingen
Online-ID: 2nt8y5s
Referenznummer: 26 141 004
Finde Angebote wie dieses
Hier geht es zu unserem Impressum, den Allgemeinen Geschäftsbedingungen, den Hinweisen zum Datenschutz und nutzungsbasierter Online-Werbung.